Umbau der Markthalle am Klosterwall – Kommen Kunstinstitutionen an der Kunstmeile ins Hintertreffen?

/ 10
PDF herunterladen
BÜRGERSCHAFT DER FREIEN UND HANSESTADT HAMBURG                                        Drucksache   22/602 22. Wahlperiode                                                                              26.06.20 Schriftliche Kleine Anfrage des Abgeordneten Norbert Hackbusch (DIE LINKE) vom 18.06.20 und  Antwort des Senats Betr.:    Umbau der Markthalle am Klosterwall – Kommen Kunstinstitutionen an der Kunstmeile ins Hintertreffen? Einleitung für die Fragen: Die denkmalgeschützte Markthalle (Fritz Schumacher, 1913/1914) am Klos­ terwall befindet sich im städtischen Besitz und wird gegenwärtig von dem Ver­ anstaltungszentrum „Markthalle“ sowie von den Kunstinstitutionen Kunsthaus Hamburg, Berufsverband bildender Künstler*innen e.V., Ateliers für die Kunst e.V., Barlach Halle K und Galeriehaus Hamburg genutzt. Die Flächen des ehemaligen Antik-Centers im Untergeschoss des Hauses wurden bis zum 31. März 2019 entmietet. Im November des letzten Jahres wurde bekannt, dass der Gebäudekomplex für 43,25 Millionen Euro umgebaut und saniert werden soll. Die Hälfte der Kosten sollen aus Bundesmitteln finan­ ziert werden. Vor Kurzem hat die Sprinkenhof GmbH, als Vermieterin der Markthalle, den Kunstinstitutionen Umbaupläne präsentiert, die ihre Verlegung von der Stra­ ßenebene am Klosterwall in das Untergeschoss an den Gleisen zugunsten einer Erweiterung des Veranstaltungszentrums „Markthalle“ vorsehen. Die Kapazität des Veranstaltungsortes soll verdoppelt werden. Vor diesem Hintergrund frage ich den Senat: Einleitung für die Antworten: Der Senat beantwortet die Fragen teilweise auf Grundlage von Auskünften der Sprin­ kenhof GmbH (Sprinkenhof) wie folgt: Frage 1:           Seit wann laufen konkrete Planungen für die Erweiterung des Veran­ staltungszentrums „Markthalle“, und warum ist diese Maßnahme aus Sicht der zuständigen Behörde(n) notwendig? Antwort zu Frage 1: Seit Frühjahr 2019 sind tiefergehende Untersuchungen von Sprinkenhof als Eigentü­ merin des Objektes beauftragt worden, um die zukünftige Nutzung technisch und funk­ tional auf den aktuellen Stand zu bringen und neu zu strukturieren. Angesichts erhebli­ cher struktureller baulicher Defizite und eines sich auflösenden Geschäftsmodells „Antik-Center“ und den hiermit verbundenen Leerständen wurden von Sprinkenhof Überlegungen zum Gesamtobjekt – auch unter Einbeziehung der Behörde für Kultur und Medien – angestellt, die unter anderem auch denkmalschutzrechtlichen Aspekten Rechnung trägt. Dieser Ideen- und Planungsprozess läuft derzeit noch.
1

Drucksache 22/602         Bürgerschaft der Freien und Hansestadt Hamburg – 22. Wahlperiode Frage 2:          Wer hat die Pläne für die Erweiterung des Veranstaltungszentrums „Markthalle“ zu welchem Zeitpunkt und aus welchen Gründen ange­ stoßen? Antwort zu Frage 2: Im Rahmen des unter Frage 1 angestoßenen Ideen- und Planungsprozesses sind ver­ schiedene Varianten der zukünftigen Nutzung und der Verwertung der zur Verfügung stehenden Mietflächen erörtert worden. Durch den Auszug der ehemaligen Mieter des „Antik-Centers“ hat sich die Chance eröffnet, das Objekt als ehemalige Blumenmarkt­ halle neu zu positionieren, um dem Charakter eines denkmalgeschützten Objektes gerecht zu werden. Frage 3:          Wurden alternative Planungen, wie zum Beispiel die Erweiterung des Veranstaltungszentrums „Markthalle" ins Untergeschoss erwogen? Wenn ja, mit welchem Ergebnis? Antwort zu Frage 3: Derzeit werden alle Möglichkeiten der Nachnutzung in Erwägung gezogen. Da die Pla­ nungen noch nicht abgeschlossen sind, kann hinsichtlich der Umsetzung, auch vor dem Hintergrund der Genehmigungsfähigkeit, keine Aussage gemacht machen. Frage 4:          Welche einzelnen Maßnahmen mit Blick auf den Umbau sind zu wel­ chen Zeitpunkten geplant? (Bitte Pläne beifügen.) Antwort zu Frage 4: Ein exakter Maßnahmenplan besteht derzeit noch nicht, da die Planungen noch nicht abgeschlossen sind. Auch kann hinsichtlich der zeitlichen Durchführung keine Aussage gemacht werden. Grundsätzlich besteht die Überlegung, den Rückbau des eingeschos­ sigen Vorbaus vor dem Nordgiebel durchzuführen, um die Eingangssituation des Gebäudes zu verbessern, die Attraktivität zu steigern und den Nordgiebel nach histori­ schem Vorbild wiederherzustellen. Frage 5:          Sind im Zuge der Umbaumaßnahmen Kündigungen oder Änderun­ gen von Mietverträgen vorgesehen? Wenn ja, zu welchem Zeitpunkt? Antwort zu Frage 5: Es ist vorgesehen, alle Mieterinnen und Mieter mit langfristigen Mietverträgen im Objekt zu halten. Kündigungen sind derzeit nicht vorgesehen. Sollte es zu Veränderungen des jeweiligen Mietgegenstandes kommen, werden Mietverträge entsprechend angepasst. Frage 6:          Wann wurden die oben genannten Kunstinstitutionen erstmals über die Pläne informiert und auf welchem Wege wurden sie aktiv in die Planungen einbezogen? Antwort zu Frage 6: Die ersten Gespräche wurden im Juni 2019 geführt. Nutzungsanforderungen und Wün­ sche der Mieterinnen und Mieter sind von Sprinkenhof abgefragt worden. Frage 7:          Werden sämtliche Mieter/-innen des Gesamtkulturstandorts Markt­ halle gleichberechtigt in die Planungen der Umbaumaßnahmen par­ tizipativ einbezogen? Wenn ja, auf welchem Wege? Wenn nein, warum nicht? Antwort zu Frage 7: Sämtliche Mieterinnen und Mieter wurden zu ihren aktuellen Nutzungsanforderungen per Fragebogen befragt und hatten so Gelegenheit Bedarfe und Wünsche zu äußern. 2
2

Bürgerschaft der Freien und Hansestadt Hamburg – 22. Wahlperiode        Drucksache 22/602 Frage 8:           Ist die Finanzierung aus Bundes- und Landesmitteln in Höhe von 43,25 Millionen Euro nach wie vor gesichert, und gibt es bereits eine detaillierte Kostenaufstellung der geplanten Umbaumaßnahme? Wenn ja, bitte beifügen. Antwort zu Frage 8: Der Antragsprozess ist noch nicht abgeschlossen. Detaillierte Kostenaufstellungen lie­ gen noch nicht vor, da die Planungen noch nicht abgeschlossen sind. Frage 9:           Wie sollen im Falle einer Verlegung der Kunstinstitutionen von der Straßenebene am Klosterwall in das Untergeschoss an den Gleisen, deren Zugänglichkeit und Sichtbarkeit gewährleistet bleiben, und inwieweit wurde der Raumbedarf der einzelnen Mieter/-innen dabei berücksichtigt? Antwort zu Frage 9: Durch Freilegung des Nordgiebels der ehemaligen Blumenmarkthalle soll ein Vorplatz entstehen und zu einer erhöhten Sichtbarkeit und repräsentativer Adressbildung beitra­ gen. Die Zugänglichkeit soll weiterhin über einen Treppenabgang und einen barriere­ freien Aufzug im Zentrum des Platzes erfolgen. Weiterhin befindet sich eine zusätzliche, ebenerdige Zugänglichkeit über die Hofebene, welche auf gleichem Niveau mit der Amsinckstraße liegt. Vorbehaltlich der ausstehenden Bedarfsanalyse der Mieterinnen und Mieter wird das Ziel verfolgt, die jetzige Mietfläche entsprechend des Bestandes abzubilden beziehungsweise etwaige Wünsche der Mieterinnen und Mieter zu erfüllen. Frage 10:          Wurde eine alternative Nutzung des Untergeschosses (zum Beispiel als zusätzliche Flächen für Künstler/-innen und Galerien an der Kunstmeile) in Erwägung gezogen? Wenn ja, mit welchem Ergebnis? Antwort zu Frage 10: Es wurden zunächst Alternativen für die Bestandsmieter geprüft, wie eine langfristig ausgerichtete Nutzung aller Geschossebenen erfolgen kann. Hinsichtlich der Ergeb­ nisse siehe Antwort zu Frage 3. Frage 11:          Welche Auswirkungen hat nach Einschätzung des Senats der geplante Umbau auf die Kunstmeile als Zusammenhang der Kunstin­ stitutionen vom Glockengießerwall über den Klosterwall zum Deichtorplatz und auf die städtebauliche Verbindungsachse zwischen Hauptbahnhof und HafenCity? Inwieweit hat sich der Senat hierbei mit einer möglichen Schwächung der Lauflage am Klosterwall beschäftigt? Antwort zu Frage 11: Die denkmalgerechte Sanierung des Gebäudes kann zu einer Aufwertung des Standor­ tes und damit auch der Kunstmeile führen. Voraussetzung ist, dass es gelingt, alle bis­ herigen Mieterinnen und Mieter mit ihren unterschiedlichen Interessen in der Neukon­ zeption angemessen zu berücksichtigen. Dazu werden derzeit Gespräche geführt. Im Übrigen hat sich der Senat damit nicht befasst. Frage 12:          Welche städtebaulichen Maßnahmen sind für das Umfeld der Markt­ halle geplant? (Bitte Pläne beifügen.) Antwort zu Frage 12: Auf der Westseite des Klosterwalls ist mit dem Johann Kontor ein neuer Gebäudekom­ plex mit Wohn-, Büro- und einer Hotelnutzung im Bau (Lageplan siehe Anlage 1). Im Gebäudesockel sind ein Nahversorger und Gastronomie sowie Flächen für kulturelle Nutzungen geplant. Für das gesamte Kontorhausviertel, insbesondere aber für den Burchardplatz, ist mittelfristig eine gestalterische Aufwertung des öffentlichen Raumes 3
3

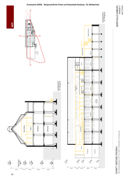
Drucksache 22/602        Bürgerschaft der Freien und Hansestadt Hamburg – 22. Wahlperiode geplant (konkrete Planzeichnungen liegen noch nicht vor). Im Bereich der Deichtorhal­ len wird eine anderweitige Nutzung der Gewölbe unter den Gleisanlagen diskutiert (Planzeichnungen liegen noch nicht vor). Frage 13:         Wie viel der historischen Bausubstanz soll bei dem geplanten Umbau abgerissen, und wie viel neue Bausubstanz hinzugefügt werden? (Bitte Rot-Gelb-Pläne beifügen.) Antwort zu Frage 13: Die historische (denkmalgeschützte) Substanz wird nicht abgerissen. Hinzugefügt wird ein Aufzug für einen barrierefreien Zugang auf dem freigelegten Vorplatz am Nordgie­ bel. Der Innenausbau erfolgt unter Einbeziehung der Denkmalpflege. Zu den Entwurfs­ plänen siehe Anlage 2. Frage 14:         Sind die unterirdische „Markstraße“ und die Ladeneinheiten des ehe­ maligen Antik-Centers bauzeitlich oder aus welchen Baujahr stam­ men diese? Antwort zu Frage 14: Die Ladeneinheiten und Marktstraße stammen nach Aktenlage aus den Jahren 1962/ 1963. 4
4

S6500 Vorhaben- und Erschließungsplan Legende Allgemein s t r a ß e                                                                                                                                                                                                                                                                                                                                                                                                                                                                                                                                                                                                                                                                                                                                                                                                                                                                                                                                                                                                                                                                                                                                                                                                                                                                                                                         Grenze des Vorhaben- und tei n                                                                                                                                                                                                                                                                                                                                                                                                                                                                                                                                                                                                                                                                                                                                                                                                                                                                                                                                                                                                                                                                                                                                                                                                                                                                                                                                     Erschließungsplans U inst raß e Stein                                                                                                                                                                                                                                                                                                                                                                                                                                                                                                                                                                                                                                                                             14,94 Steinstraße                                                                                                                                                                                                                                Kubatur Dachgeschoss 2,5 5 2                                                                                                                                                                                                                                                              2 Radwe 7                                                                                                                                                                                                                                                                                                                                                           Auskragung                                                                                                                                                                                                          g                                                                       2                                                                                                                                                                                                                                                                                                                                                                                                                                                                                                                                                                                                                                                              Kubatur Erdgeschoss Fassade EG zu Attika                                                                                                                                                                         Auskragung 4,43    60                                                                                                                                                                      Fassade EG zu Attika H9                                  H8                                                      H7                                                 H6                               H5             H4   H3    H2                  H1                        H0 Grundstücksgrenze                                                                                                                                                                                                                                                                                                                                                                                                                                                                                      Grundstücksgrenze 3,09                                         27,89                                                                                                              60 15.18                                                                                                                                                                                                                                  4 4,42 5                                                                                                                                                                                                                                                                                                                                                                                                                                                                                       14,98 OK Attika +48,6                                                                      15.18 4,29 Auskragung VII 1                                                                                                                                                                                                                                                             14.73 3,02 5 3,02 5 60 14,82 14.85                                                           14.85 Fassade EG zu Attika Auskragung                                                                                                                                                                                                                                                                                                                                                                                                                                                                                                                                                                                                                                                                                          Gebäudeteil A 16 FST P                                                                                                                                                                                                                         IX                                                       X 14.82                                         14.55 60                                                                            Gebäudeteil A 1                                                                                                                                                                                                                                                                 (14.43) OK Attika +45,1 Fassade EG zu Attika Wartungsweg                                                        16,90                                                                                      IX          2 XII 1 1                                                                                                                                                                                                                                                                                                                                                                                                                                                                                                                                                                                                                                                                                                                                                                                                                                                                                                                                                         Gebäudeteil B 14,39 2 X                                                      3,85                        3,85                                                                      OK Attika +48,6                                                                                                                                                                                                                                                                                                                                                                                                                                                                                                            14,35 34,7 31,01 OK Attika +48,60                                                                                                                                                                                                                                                                                                                                                                                                                                                                                                                                                                                                                                                                                                                                                                                                                                             Gebäudeteil C OK 4. Staffel 9. OG +44,4 OK 1. Staffel 7. OG +38,4                                                                                                                                                                                                                                                                                                                                                                                                              34,69                                                                                                                                                                                                                                                                                                                                                                                                                    NOVOTEL OK 3. Staffel 7. OG +38,4                                                                                                                                                   3,52             2,5          2,8        2,85 6                                                                                                                                                                       OK 2. Staffel 8. OG +41,4                                                                                                                                                                                              IX                                                                                                                                                                                                                                                              3,25     3,25                                                                                                                                                                                                                                                                                                                                                                                                                     13,91 OK 2. Staffel 5. OG +32,4                                                                                                                          OK 3. Staffel 9. OG +45,1 rtungs weg                    sweg OK 3. Staffel 9. OG +45,1                                                                                                                                                      Wa VII                                      OK 1. Staffel 3. OG +26,4 13,85 Wartun g V                                                   I                                                                                                                                               OK 2. Staffel 8. OG +41,4                                                                                                                                                                                                                                                                                                                                                                                                                                                                                                                                                                                                                                                                 intensive Dachbegrünung Innenhöfe 8,87                                                                                 OK Innenhof +19,8 VII                                                                                                                                                                                                              54 54 54                                                                                  OK Attika +48,6 III                                 54                                                                                         Wartungsweg OK 1. Staffel 7. OG +38,4 1 VII                                                                                                                                                                                                                                                                                                                                                                                                                                      Oberlicht                       12,78 5 OK 1. Staffel 7.OG +38,4 54 54 54 54 OK 2. Staffel 8.OG +41,4 2,96                                                                                                                                                                                                                                                                                         8,67 5 Bestand optimiert VIII                                                                                                                                                                                                                                                                       3 II                                                                                                                              VII OK Attika +45,1                                                                                                                               Innenhof OK 3. Staffel 9.OG +45,1 13.36                                                                                                                                                                                                                                         3,48 13.48                                                                                                                                                                                                                                                                                                                                                                                              VIII                                                                                                                                                                                                                                                                                                                                                                                                                                                                                                                                                                                                                                                                             Flurstücksgrenzen, 13,39 13.57 ±0,00                          nachrichtlich dargestellt F90 BRAN DWAND 2 I                                                                                                            1,94 5 F90 BRAN DWAND 2,5          2,65       3 10,70                                                                                  2,20                           OK Dachausstieg+45,1                                                      OK Attika +45,1                                                                                                  3,25                                                                                                                                                                                                                                                                                                                                                                                                        13,35 4,30                                                                                                                                                                                              IX                                                                                                                                                                                             OK Traufe Bartholomayhaus IX                                                                                                                                          6,83 4,30 13.35                              13.15 OK Dach Bartholomayhaus OK Attika Hotel +48,6 8,44                                                                                   10,70 IX                                                                                                                                                                                                                                                                                                                                                                                                                                                                                                                                                                                                                                                                                                                                     Höhenkote EG neu OK Attika +42,8                                                                                                                                                                                                                                                                          3,04                             13.03                                                                                                                                                                                                                                                                                                                                                                                                                                                                                                                                                                                                                                13.15 e     VII                                                                                                                                             Wartung sw   eg 6,29 OK Dachterrasse +42,5                                                                                                                                                                                                                                                                                                                                                                                                                                                                                                                                                                                                                                                                                                                                                                                     13.03 D 12,95 n OK Geländer +43,6                                                                                                                                                                                                                                                                                                                                                                                                                                                                                                                                                                                                                                                                                                                                                                                                                                                                                                                                     Höhenkote EG Bestand 0 VIII                                                                                                                                                                                                                                                                                                                                                                                   OK Attika +42,8 8 OK Attika +42,8 0 6                                                                                                                                                                                                                                    Kiesstreife 12,91 J                                                                                                                                                                                                                                                                                                                                                                                                                                                                                                                                                                                                                                                                                                                                                               +40,51 12,85 Ladezon cm OK 2. Staffel 8.OG +39,5                                                                                                                        sweg 80                                                                                                                                                                                                                                                                                                                                                            36 1                                                                                                                                                                                                                                                                                          Wartung OK 4 Staffel 8. OG +39,0 +48,00 12,81 3                                                                                                                                                                                                                     2,72 30,80 OK 1. Staffel 7.OG +36,5                                                                                                                                                                                                OK 3 Staffel 7. OG +36,0 1976 1975                                                                                                                                                                                                                                                                                                                                                                K 2 Staffel 6. OG +33,0                                                              XII 1                                                                         4 12,44                                                                                                                                     Planungen im Geltungsbereich des OK 1 Staffel 3. OG + 24,3                                                                                                                                                               30,80                                                                                                                                                                                                                                                                                                                                                                                                                                                                                                                                12,28 3                                                                                                                                                                                                                                                           OK Freifläche KiTa +39,4                                                                                                                                                                                                                                                                                                                                                                                                                                                                                                                                                                                                                                                                                                                  vorhabenbezogenen Bebauungsplans Allstädter Straße                                                                                                                                          6,27 Gebäudeteil B 22,36    I                                                                                                                                   3,79 2,5                                                                                                                                                                                                                                                                                                                                                                                                                                                           Kultur                                                                                                                                                                                     Hamburg-Altstadt 49 - Inhalte nur nachrichtlich 2 12.15                                                                                                                                                                                                                                                                                                                                                                                                                                                                3 Innenhof                                                                                                                                                                                                                      3,25 3,25 12,00 12.27 OK Innenhof +17,8 12.27                                                                                                                                                                                                                                                                                                                                                                                           VII                                                                                                                                                                                                                                                                                                                                                                                                                                                                                                                                                                                                                                                                         Legende 11,96 1,08 5             1,00                                                                                                                                                                                                                                                                                                                                                                                                 11.85 Kiesstreife n                                                                                                                                                                                                                                                           VIII Passage                                                                Wartung 8,40 Jo sweg 80 cm 1,251,25 h 7,20                                                                                                                                                     1,25 50                                                                                                                                                                                                                                                             (11.73) a 11,53                                                                                                                                         VIII n                                                                                                                                                                                                                                                                                                                                                                                                                                                                                                                                                                                                                                                                                                                                                                                                                                                                                                                                                                                                                                                                                                                                                     Allgemein 11,80 n 50 1,251 i ,251 s F90 BRAN                                                                                                                                                                                         ,25 DWAN                   D w 7,20                                                                                            8,40                                  11.80 a ±0,00 1,010 5 l n 30cm                                                                                                                                                                                                                                                                                                                            ,08 l                                                                                                                                                                                                                                                                                                                                                                                                                                                                                                                                                                                                                                                                OK Attika Wohnen +42,8 12.09                         Kiesstreife o Passage h                                                                                                                                                                                                                                                                                                                                                                                                                                                                                                                                                                                                                                                                                                                OK 2. Staffel 8.OG +39,5                                   OK 1. Staffel 7.OG +36,5 11.69                                                                                              cm 7,20                                                                                                                                                                                                                                                                                                                                                                                                                                                                                                                                                                                                                                                                                                                       Geltungsbereich des vorhabenbezogenen a Passage Wartung 9,46 1497 n 11.81                                                                                               sweg 80 100                                                                                                                                                                                                                                                                                                                                                                                                                                                                                                                                                                                                                                                                                                                                                                                                                              Bebauungsplans Hamburg-Altstadt 49 11,45 los 3,5                                                                                                                                                                                                                                                                                                                                      IX n 2,65                                                                                                                                                                OK Geländer +40,1 i                                                                                                                                                                                                 C0340                                                                                                                                                                                                                                                                                                                                       t e 1972                                                                                                                                                                                                                                                                                                                                                                                                                                                                                                                                                                                                                                                                                                                                                                                                                                                                                                                                                                                                                                                                                                   11,30 s OK Geländer+37,1                                                                                                                                                                          11.45 UK Passage 16,25 r 4                                                                                                                                                                                                                                                                                                                                                                                                                                                                                                                                                                                                            11.23 w                                                                                                                                                                                                                                                                                                                                                                                                                                                                                                                                                w 2                                                                                                                                                                                                                                                                                                                                  OK Geländer+34,1 3 II a                                                                                                                                                                                                                                                                                                                                                                                                                                                                                                                                                a 2 II                                                                                                                                                                                                                                                                                                                            (11.11) E l                                                                                                                                                                                                                                                                                                                                                                                                                                                                                                                                                l l 11,10                                                                                                                                 Flurstücksgrenzen, l OK Attika +42,8                                                                                         9,46 9,5                                                                                                                                                                                       VIII 11,06 J                                                                                                                       80cm                                                                                                            VII                                                                                                                                                                                                                                                          38 K                                                                                                                                                                                                                                                                                                                                                                                                                                                                                                                                                                                                        nachrichtlich dargestellt 10,98 Wartung sweg III VI                                                                                                                                                                                                                                                                                                                                                                                                                                                                                                                                K Attika Sprinkenhof (Seitenflügel) 10,94 OK Attika Sprinkenhof (Hauptteil) 1611 e 1973                                                                                                                                                                                                                                                                                                        III g 27,99 VI a OK Attika +42,8 s s VII a 80cm n 50cm P Wartung sweg   Kiesstreife                                                                                                                          VIII                                                                                                                                                                                                                                                                                                                                                                                                                                                                                                                                                                                                                                                                                                                                                                                                                                 Bordsteine 10,65 10.98                                                                                                                                                                                                                                                                                                                                                                               OK 2. Staffel 8.OG +39,5 1977                                            11.10                                      11.10 24,46 5 10,61 Tiefgara                                                                                                          IX                                                                                                                                                                                                                                                                                                                                                                      10.43 ge City-Hof- 6 +41,40                                                                                             +35,93 (Einfahrt / Ausfah                                                                                                                                                                                                                                                                                                                                                                                                                                       24,37                                     (10.31)                                                                                                                                                                                                                                                                                                                                                                                                                                                                                                             Shop                                                                                                                                                                             Bordstein "Hamburger Kante" rt)                                                                                                                                                                                                                                XII 1                         OK Innenhof +17,8 OK 1. Staffel 7.OG +36,5                                                                                                                                                                                                                                                                                                                                                                                                                                                                                                                                                                                                                        10,37 40 x 25 x 100 cm 9 0 11,3 Einfahrt 4                                                                                                                                                                                                                                                                                                                                                                                                                                                                                                                  2,5 5                                                                                                                                                                                                                                                                                                                                                                                   2 10,33 Anlieferu ng S55 10.79                                                                                                                                                                                                                                                                                                                                  10.26                                                                                                                                                                                                                                                                                                                                                                                                                                                                                                                                                                                                           10,26 Bordstein Trennung Fahrbahn / 4,55 5 4,85                                                                                                                                                                                                                                                                                                                                                                                                                                                                                                                                                                                                                                                                      Nebenflächen, Überfahrten, Einsa 10,01 t z fa                                                                                                                                                                                                                                                                                                                                                                                                                                                                                                                                                                                                                                                                                                                                                                                                                                                                                                                                                                                                                                                                                                                                                                                                                             Fahrradwege 1,21                                                                                                                                         5,6 h r ±0,00 z e                                         10.31                  18 FST                                                                                                                                                                                                                                                                                                                                                                                                     Ausfahrt u g e                                   10.43                        P                                                                                                                                                                                                                                                                                                                                                                                                                                                                                                                                                                                                                                                                                                                                                                                                                                                                                                                                                                                                    9,93 3 II                                9.93                        Anlieferu n                                  g                                                                                                                                                                                                                                                                                                     OK Attika Sprinkenhof (Seitenflügel)       OK Staffel Sprinkenhof (Seitenflügel) 9,76 Bäume 1028                                                                                                                                                                                                                 VIII                                                                                                                                                                      11,24 OK Attika +38,4                                                                                                                                                                                                                                                                                                                                                                                                                                                                                                                                                                                                                                                                                                                                                                                                                                                                                                                                                                                                                                                                                                                                                                                                       0       10               20           30                         40                                              50                                      60                             70 VII GRZ 1,0                                                                                                                                                                                                                                                                                                                                                                                                                                                                                                                                                                                                                                                                                                                                                                                                                                                                                                                                                                                                        Bäume Neupflanzung 9,32 1                                                                                                                                                                                                                                                                                                                                                                                                                                                                                                 OK Staffel 7. OG +33,8                                                                                                                                                                                                                                                                                                                                                                                                                                                                                                                                                                                                                                                                  9,32 OK Staffel 7. OG +33,8                                                                                                                                                                                                                                                                                                                                                                                                                                                                                                                                                                                                                                                                                                                                                                                                                                                                                                                                                                                                                    LADEN 2 II 8,96 9,22 +35,93                                     +32,46 9.64                                                                                                                                                                                                                                                                                                                                                                                                                                                           9.10 9.76                                                                                                                                                                                                                                                                                                                                                                                                                         VII                                8.98 2                                                                                                                                                                                                                                                                                                                                                                                                                                                                                                                                                                                                                                                                                                                                                                                                                                  OK Attika Sprinkenhof (Hauptteil) 9,19 Bäume Bestand 46,6 9                                                                                                                                                    OK Attika +38,4 OK Attika +38,4 Freie und Hansestadt Hamburg 9,06 9.67 4,81 2,5 2                                                                                                                                                                                                                                                                                                                                                                                                                                                                                                                                                                                                                                                                                                                                                                                                         Vorhaben- und Erschließungsplan zum vorhabenbezogenen 9,02 Klo s L t 6                                                             a e                                                                                                                                                                                                                                                                                                                                                                                                                                                                                                                                                                                                                                                                                                                 Bebauungsplan Hamburg-Altstadt 49 „Neues Quartier am Klosterwall d                                                                                                                                                                                                       Innenhof r 8,85 e         15,6 w z                                                                                                                                                                                                                                                                                                                                                                                                  OK Attika +38,4 o a ne l l                                                                                                                                          +41,40 KLOSTERWALL OK Innenhof +13,3                                                                                                                                                                                                                                                                                                                                                                                                                                                                                                                                                                                                                                                                                                                                                                                                                             8,84                                                                                              Ausstattung 8,80 VIII 1                                                                                                                                                                                                                                                                                                                 35,00 8              8.84 8.63                                                                                                                                                                                                                                                                                                                                                                                                                                                                                                                                                                                                                                                                                                                                                                                                          Bezirk Hamburg Mitte                                                                                       Ortsteil 101 42,37 5 8.51 1,32 5                                                                              XII 1 Gebäudeteil C                                                                                                                                                                                                                                                                                                                                                                                                                                                                                                                                                                                                                                                                                                                                                                                                                                                                                                                                                                                                                                                                    Fahrradständer, Flachstahl 13,6 25                                                                                                                                                                                                                                                                                                                                                                                                                                                                                                                                                                                                                                                                                                                                                                                                                                                                                                                                                                                                                                                8,43 I 8,37 6                                                                                                                                                                                                                                                                                                                                                                                                                                                                                                                                                                                                                                                                                                                                                                                                                                                                                                                                                                                                                                                                                                                                 GASTRONOMIE ConeticsQR 15,1 75 Leuchtmast                                                                                 N VIII                                                                                                                                                                                                                                                                                             13,62 5                 VIII Bürgerschaft der Freien und Hansestadt Hamburg – 22. Wahlperiode 8.43                                     8.59 1,32 5                                                                                                                                                                                                                                                                                                                                                                                                                                                                                                                                                                                                                                          GASTRONOMIE 8.55 B III 3,4 1,66                                                                                                                                                                                                                                                                                                                                                                                                      7                                                                                                                                                                                                                                                                                                                                                                                                                                                                                                                                                                                                                                                                                                                                                                                                                                                                                                   100                         B II 300                      500 BI                                                          B IV Regenrohr                                                                                                                                                                                                                                                                                                                                                                                                                                                                      WI   W II         W III                 W IV   WV   H I   H II H III 2,5 HV H IV 1,1 8,06                                                                                                                                                                                                                                              BX'           BX 6 Fußgä                                                                                                                                                                                                                                                                                                                                                                                                                                                                                                                                                                                                                                                                                                                                                                                                                                                                                                                                                                                                                                                                                                                                                                                                                                                            Blindenleitsystem, nger-                                                                                                                                                                                                                                                                                                                                                                                                                                                    8.06                                                                                                                                                                                                                                                                                                                                                                                                                                                                                                                                                                                                                                                                                                                                                                                                                                                                                                                                                                                              100                        300 WX 100 WX' HX 8,01 BX überwe g                                                                                                                                                                                                                                                                                                                                                                                                                                                         6,7                                                                                                                                                                                                         23                                                                                                                                                                                                                                                                                                                                                                                                                          GASTRONOMIE                                                                                                                                             Rippenplatten, 5                       7.89 7,97 7.77 Gebäudefuge/ Brandwand                                                                                      Gebäudefuge/ Brandwand 10,51 5                                                                                                                                                                                                                                                                                                                                                                                                                                                                                                                                                                                                                                                                                                                                                                                                                                                                                                                                                                                                                                                                                                                                                                                        dunkelgrau                                                                                              BY HY h a rd s t r a e ß e                                                  Passage Passage                                                                                                                                                                                                                                                                                                                                                                                                                                                                                                                                                                                                                                                                                                                                                                                                                                                                                                                                                                                                   7,93 B rdu r s c t r  a ß                                                                                                                                                                                                                                                                                                                                                                                                                                                                                     U-Bahn                                                                                                                                                                                                                                                                                                                                                                                                                                                                                                                                                                                                                                                                                                                                                                                                       Blindenleitsystem,                                                                                            BZ Bu       rcha                                                                                                                                                                                                                                                        10,26                                                                                                                                                                                                                                         Zugang Rippenplatten,                                                                                                200                                  400                      600                                                                                                                                      HZ WZ' BZ' BI                                                                                                      WX BZ 8.11 B II H IV 8.32                                                                                                     4,82                                                                                                                                                                                                                                                                                                                                                                                                                                                                                                                                                                                                                                                                                                                                                                                                                                                                                                                                                                                                                                                                                                                                                                                                                                                                                                                                                                                      HV 1 Radwe 1  g                                                                                                                                                                                                                                                                                                                                                                                                                                                                                                                                                                                                                                                                                                                                                                                                                 dunkelgrau                                                                                                                                                                                      200                        400                       200                   H III B III ,                                                                                                                                                                                                                                                                                                                                                                                                                                                                                                                                                                                                                                                                                                                                                                                                                                                                                                                                                                                                                   W II H II B IV   WI                 W III                W IV   WV   H I 4,82                                                                                                                                                                                         33 7,88 35,03 5                                                                                                                                                                                                                                                                                                                                                                                     7.7  1 7 U Pa ssa                       .5 9                                                                                                                                                                                                                                                                                                                                                                                                                                                                                                                                                                                                                                                                                                                                                                        Planzeichen                                                                                ± 0,00 = +7,82m ü.NN 4 UK Passage 14,43 OK Attika +38,4                                                                                            OK Attika +45,1                                                                                                                                                                                                                                                                          ge                                                                                                                                                                                                                                                                                                                                                                                                                                                                                                                                                                                                                                                                                                                             7,84 P                                                                                                                                                                                                                                                                                                                                                                                                                                                7.8 40,                                                                                                                                                                                                                                                                                                                                                                                                                                                                                                                                                                                                                                                                                                                                                                                                                                                                                                Bauherr                                                                                                             Dampfschiffsweg 3-9 Freigabe Bauherr 22,86 3,6 8 99 5 “AUG. PRIEN“ Immobilien                                                                                       21079 Hamburg WP3 OK Attika +45,1                                                                                                                                                                                                                                                                                                                                                                                                                                                                                                                                                                                                                                                                                                                                                                                                                                                                                                                                                                                                                                                              Tür / Einfahrt Tiefgarage                                           PE Klosterwall GmbH & Co. KG                                                                                                  WP2 OK Attika +38,4 27,33 1,1 WP1 5                                                                                                                                                                                                                                                                                                                                                                                                                                                                                                                                                                                                                                                                                                                                                                       7,79 3,2                                                                                                                                                                                                                                                                                                                                                                                                                                                                                                                                                                                                                                                                                                                                                                                                                                                                                                                                                                                                                                                   Tel.: 040 77125-379 3 2,5 22, FAX: 040 77125-381 Datum               Unterschrift 91 5                                                                                                                                                                                                                                                                                                                                                                                                                                                                                                                                                                                                                                                                                                                                                                                                                                                                  Höhenkote EG neu 13.15 OK 1. Staffel 7. OG +33,8 7,98 P                                                                                                                                                                                                                                                                                                                                                                                                                                                                                                                                                                                                                                                                                                                                                                                                                                                                                                                                    JOHANN KONTOR 13.03                                                                    GÜ          “AUG. PRIEN” Immobilien                                                                                 Dampfschiffsweg 3-9 Freigabe GÜ Höhenkote EG Bestand                                                                                                                                                              21079 Hamburg WP3 X                                                                                                                                                                                                                                                                                                                                                                                                     U                                                                                                                                                                                                                                                                                                                                                                                                                                                                                                                                                                                                                                                                                                                                                                                                   Gesellschaft für Projektentwicklung mbH                                                                                       WP2 7.99                                                                                                                                                                                                                                                                                                                                                                                                                                                                                                                                                                                                                                                                                                                                                                                                                                                                                                                                                                                                                                                                                                                                                                                                                                                                                                                                                                                  WP1 OK Attika Büro +38,4 Drucksache 22/602 9                                                                   OK Attika +45,1                                                                                                                                                                                                                                                                                                                                                                                                                                                                                                                                                                                                                                                                                                                                                                                                                                                                                                                                                                                                                                                                                       IX - Anzahl der Geschosse 8                                                                                                                                                                                                                                                                                                                                                                                                                                                                                                                                                                                                                                                                                                                                                                                                                                                                                                                                                                                                                                                                                                                                     7,96 . 7 77                            3,16 Tel.: 040 77125-379 3,3 1                                                                         7.                                         5                                                                                                                                                                                                                                            5                                                                                                                                                                                                                                                                                                                                                                                                                                                                                                                                                                                                                                                                                                                                                  RESTAURANT                                                                                                                                                                                                                                                                                                                            FAX: 040 77125-381 Datum               Unterschrift 8 4,                      7.99                  21,56 5                                                                                                                                                                                                                      2                                                                                                                                                                                                                                                                                                                                                                                                                                                                                                                                                                                                                                                                                                                                                                                                                                                             Hinweis Verkehrsplanung (außerhalb der Grenze des Vorhaben- und OK Attika Büro +45,1 5 8.15    8.15 Erschließungsplans): Bei der dargestellten Planung handelt es sich um einen    GU                                                                                                                  Dampfschiffsweg 3-9 Freigabe GU 3,                                                                                                                                                                                                                                    3,40 AUG. PRIEN 7.88 Entwurfsstand vom 13.02.2019, der sich weiterhin in Abstimmung befindet.                                                                                                                                 21079 Hamburg WP3 25                                                                                                                                                                                                                                                                                       7. 3,                                                                                                                                                                                                                                                                                                                                                                                                                                                                                                                                                                                                                                                                                                                                                                                                                                                                                                                                                                                                                                                                                                                                                                                                                                                                              Bauunternehmung (GmbH & Co. KG)                                                                                               WP2 . 82                                                                                                                                                                                                                                           7 71 .5 Deichtorplatz 0                                                                                               5                                               7 70                                                                                                                                                                                                                                                9 2                                                                                                                                                                                                                                                                                                                                                                                                                                                                                                                                                                                                                                                                                                                                                                                                                                                                                                                                                                                                                                                                                                                         7,88                                                                                                                                                                                                                                                                                        WP1 7      16                                                                                          3,                                                       7.                                                                                                                                                                                                                                                                                                                                                                                                                                                                                                                                                                                                                                                                                                        B9                                      B8                                                                     B7                               B6    B5        B4                        B3                    B2                                              B1                                                                   B0                                                                                      Hinweis: Der Vorhaben- und Erschließungsplan basiert auf einer Plangrundlage 2 5                                                                                                                                                                                                                                                                                                                                                                                                                                                                                                                                                                                                                                                                                                                                                                                                                                                                                                                                                                                                                                                                                                                                                                                                                                                                                                                                                                                                                   Tel.: 040 77125-0 3, B                                                                                                                                                                                                                                                                                                                                                                                                                                                                                                                                                                                                                                                                                                                                                                                                                                                                                                                                                                                                                                                                                                                                                                                                                                                                                                   in der Gauß-Krüger-Abbildung. FAX: 040 77125-216 Datum               Unterschrift Deichtorplatz Grundstücksgrenze                                                                                                                                                                                                                                                                                                                                                                                                                                                                                      Grundstücksgrenze 2                                                                                                                                                                                                                                                                                                                                                                                                                                                                                                                                                                                                                                                                                                                                                                                                                                                                                                                                                                                                                                                                                                                                    Michaelisstraße 22 Freigabe Architekt Hinweis Feuerwehr: Da es sich bei den hochbaulichen Planungen um               Architekt   KPW Papay Warncke und Partner Hochhäuser handelt, erfolgt die Personenrettung über einen                                                                                                                                               20459 Hamburg WP3 Architekten mbB                                                                                                               WP2 Sicherheitstreppenraum. Feuerwehraufstellflächen im Außenraum sind daher WP1 nicht notwendig. Tel.: 040 355 55-0 4                                                                                                                                                                                                                                                D                                                                                                       1965                                                                                                                                                                                                                                                                                                                                                                                                                                                                                                                                                                                                                                                                                                                                                                                                                                                                                                          FAX: 040 355 55-0 Datum               Unterschrift Anlage 1 e 2                                                                                                                                                                                                                                                                                                                                                                                                                                                                                                                                                                                                                                                                                                                                                                                                                                                                                                                                                                                                                                                                                                                                                                                                                               Spaldingstraße 188 Freigabe Verfasser p ich                                                                                                                                                                                                                                                                                                                                                                                                                                                                                                                                                                                                                                                                                                                                                                                                                                                                                              Planverf.   Bruun & Möllers GmbH & Co. KG -I 2                                                       P                                                                                                                                                                                                                                                                                                                                                                                                     l a    to                                                                                                                                                                                                                                                                                                                                                                                                                                                                                                                                                                                                                                                                                                                                                                                                                                                                                                                                                                                                                   20097 Hamburg WP3 Baum tz    r                                                                                                                                                                                                                                                                                                                                                                                                                                                                                                                                                                                                                                                                                                                                                                                                                                                                                                   Landschaften                                                                                                                  WP2 pflanzu Solitär        ng                                                                                                                                                                                                                                                                                                                                                                                                                                                                                                                                                                                                                                                                                                                                                                                                                                                                                                                                                                                                                                                                                                                                                                                                                                                                                                                                                                                                                                    WP1 Tel.: 040 822777-0 1                   4 -P                                                                                                                                                                                                                                                                                                                                                                                                                                                                                                                                                                                                                                                                                                                                                                                                                                                                                                                                                                                                                                                                                                                                                                                                                                                                                                                                                                                                                                                                                          FAX: 040 822777-17 Datum                Unterschrift Deichtorplatz                                                                                                                                                                                                                                                                                                                                                                                                                                                                                                                                                                                                                                                                                                                                                                                                                                                       Vorhaben- und Erschließungsplan 1806                                                X 1 Planbez.    Übergreifend                                                                                                                                                 Bauteil XX 2 Dachgeschoss Plan-Nr.    Gebäude-       Gewerk/       LPH Planart                 Lokation                                      BT/                  Index                 Freigabestatus ß                                                                                                                                                                                                                                                                                                                                                                                                                                                                                                                                                                                                                                                                                                                                                                                                                                                                                                                                                                                                                                                                                                                                                                                                                                                          teil         Verfasser                                                                              Laufnr. -S t r a d t y- B                 ran                                                                                                                                                                                                                                                                                                                                                                                                                                                                                                                                                                                                                                                                                                                                                                                                                                                                                                                                                                                                                                                                                                                                                                                                                                                                                         XX_PFRA_3_LA_DA_000_06_VA Wi l l Gezeichnet                    Datum                                                              Blattformat                                                Maßstab e 5                                                                                                                                                                                                                                                                                                                                                                                                                                                                                                                                                                                                                                                                                                                                                                                                                                                                                                                                                                                                                                                                                                                                                                                                                                                                                                                                                                                                            JE                            20.04.20                                                           ISO A1                                                     1:500
5

Drucksache 22/602 Bürgerschaft der Freien und Hansestadt Hamburg – 22. Wahlperiode Anlage 2 6
6

Bürgerschaft der Freien und Hansestadt Hamburg – 22. Wahlperiode Drucksache 22/602 7
7

Drucksache 22/602 Bürgerschaft der Freien und Hansestadt Hamburg – 22. Wahlperiode 8
8

Bürgerschaft der Freien und Hansestadt Hamburg – 22. Wahlperiode Drucksache 22/602 9
9

Drucksache 22/602 Bürgerschaft der Freien und Hansestadt Hamburg – 22. Wahlperiode 10
10