Nachrichten für Luftfahrer 2024 Teil 1 (weicht ggf. von Druckversion ab)

/ 1605
PDF herunterladen
Flughafenbenutzungsordnung für den Flughafen Düsseldorf (EDDL)




                                                                                                                        2024-1-3143
       Flughafenbenutzungsordnung
       Anlage 7 SLS zur Nutzung von Gate Countern

       Desks zur Dokumentenkontrolle müssen auf feststellbaren Rollen montiert sein. Die Maße 1,3m x 1,0m x 0,5m
       (HxBxT) dürfen nicht überschritten werden.

       Die Luftverkehrsgesellschaften haben die Möglichkeit, die Passagierführung am Gate nach vorheriger Zustim-
       mung des Terminalmanagements zu gestalten.

       Bewegliche Bodenbeläge (z.B. Teppiche) sind nicht zulässig. Weiteres Material ist im Gatebereich nicht gestat-
       tet.
       Direkt nach Boardingende ist das gesamte LVG/Airline-Equipment wieder zu entfernen. Die jeweiligen Luftver-
       kehrsgesellschaften bzw. deren Beauftragte haben dafür Sorge zu tragen, dass bei allen Aufbauten die bestim-
       mungsgemäße Nutzung des Gates und der dazugehörigen Technik nicht beeinträchtigt ist. Flucht- und Ret-
       tungswege dürfen nicht eingeengt oder verdeckt werden. Ebenso sind wichtige Bedienelemente (z.B. Not-Aus-
       Taster, DGR-Hinweise etc.) frei zu halten. Für den Transport der benötigten Materialen ist die Nutzung von Ge-
       päckwagen untersagt.
       Defekte Materialien (Konturrahmen, Werbebanner, Stelen o.ä.) sind umgehend auszutauschen und der Repa-
       ratur oder Entsorgung zuzuführen. Bei Unterlassung ist die FDG berechtigt, zur Vermeidung von Unfällen, die-
       ses Equipment auf Kosten der entsprechenden Luftverkehrsgesellschaft zu entfernen. An geeigneter Stelle
       wird dieses Equipment bis zu fünf Werktage zur Abholung bereitgehalten. Sollte das Equipment in dieser Zeit
       nicht durch die Luftverkehrsgesellschaft abgeholt werden, erfolgt eine kostenpflichtige Entsorgung durch die
       FDG.

       Für LVG-spezifisches Check-in Material (Label/Bag-Tag-Rollen, Bordkarten, Bag-Tags etc.) stellt die FDG ab-
       schließbare Schränke/Räume, derzeit nur im FSA und FSB, im Gatebereich zur Verfügung. LVG-spezifisches
       Check-in Material ist nach Check-in Ende entweder dort oder an einem anderen Ort zugriffssicher aufzube-
       wahren.


              Ordnung am Gate

             Abfertigungsmaterialien
       Nach Verlassen des Gates dürfen aus Sicherheitsgründen, u.a. Brandschutz und Sicherheitsmaßgaben der
       Airlines und Behörden, ohne Ausnahme, keine Materialien zurückgelassen werden. Sollte das Material nicht
       durch die Luftverkehrsgesellschaft oder deren Vertreter bzw. Handlingsagenten vollständig entfernt werden,
       erfolgt umgehend eine kostenpflichtige Entsorgung durch die FDG. Die Schubladen der Counter sind nur
       nachrangig zu nutzen, da sie nicht verschlossen werden können.

       In Flugsteig A werden nur die CUTE Materialien (Druckerpapier und Druckerbänder) in den Gateschränken ge-
       lagert. Hier besteht auch die Möglichkeit, ein Fach des zu verschließenden Gateschranks pro Abfertiger bzw.
       LVG zu nutzen. Dort gelagerte Materialien sind in einem mit Namen der LVG bzw. des Abfertigers gekennzeich-
       neten Korb oder Kasten etc. aufzubewahren. Die Schränke sind stets verschlossen zu halten. Abfertigungs-
       agenten erhalten eine angemessene Anzahl der jeweiligen Schlüssel gegen Unterzeichnung der Vorlage zur
       Einhaltung der Ordnungsregelungen.

       In den Flugsteigen B und C werden das Reservedruckerpapier (1 Karton) und die Reserve-Druckerbänder unter
       dem Counter gelagert. Eine Kurzfassung der Ordnungsanweisungen hängt in den Gateschränken aus.

             Busbestellung
       Das zentrale Infrastrukturmanagement stellt ein Busgestellungssystem, genannt BRAS, zur Verfügung. Es be-
       steht keine vertragliche Verpflichtung zur Nutzung oder störungsfreien Bereitstellung. Für den Störungsfall
       steht die telefonische Busbestellung jederzeit zur Verfügung.
                                                                                                                        04.06.2024




       FBO_2024                                            Anlage 7                                   Seite 114 / 123
1061

Flughafenbenutzungsordnung für den Flughafen Düsseldorf (EDDL)




                                                                                                                         2024-1-3143
       Flughafenbenutzungsordnung
       Anlage 7 SLS zur Nutzung von Gate Countern

       Das BRAS ermöglicht der Airline eine einfache Bestellung von Bussen und dem Dienstleister für die Busgestel-
       lung eine zeitgerechte Zurverfügungstellung einer ausreichenden Anzahl von Bussen. in Bedienungshinweis
       kann der Airline oder dem Handlingspartner jederzeit zur Verfügung gestellt werden.



              Digitalisierte Gate-Ausrufe - DGA

       Die FDG stellt ein digitales, automatisiertes Gate-Ansagesystem (DGA) zur Verfügung. Die Ansagen erfolgen
       immer in Deutsch und optional in zwei weiteren von insgesamt 18 Sprachen.

       Das Automatische Ansagesystem soll vorzugsweise für die standardisierten Ausrufe genutzt werden. Gesteuert
       wird das Ansagesystem vom Gatepersonal über den CUTE-Monitor und kann für jede Luftverkehrsgesellschaft
       genutzt werden.

       Weiterhin ist es an jedem Gate möglich, eigene Ausrufe manuell zu tätigen. Eine Anleitung liegt an jedem Gate
       aus. Ausrufe über den Flughafenausruf, insbesondere personalisierte, werden nur im Ausnahmefall getätigt.


              Boarding/Einsteigeverfahren

       Das Boarding ist ohne zeitliche Verzögerung durchzuführen. Ist eine Verspätung von mehr als 15 Minuten ab-
       sehbar oder bereits eingetreten, ist unverzüglich das ACC unter 0211/421 51013 zu informieren.

       Wo installiert, werden die Passagiere durch das Fluggastleitsystem (FGLS) geleitet. Die erforderlichen Türen
       öffnen sich automatisch. Hierzu ist ausschließlich die Gate- Schlüsselschaltung zu nutzen.
       Die Türen/Ausgänge an den Gates dürfen bei geöffnetem Zustand zum Vorfeld/Fluggastbrücke nicht unbeauf-
       sichtigt bleiben. Das Busboarding beginnt erst nachdem ein Bus zur Aufnahme von Passagieren bereit ist, bzw.
       sich der Busfahrer am Gate gemeldet hat. Das System BRASS ist zu verwenden, sofern es am Gate installiert
       ist. Sofern Abfertigungspersonal das Gebäude verlässt, ist eine Warnschutzweste zu tragen.

       Bei Boarding über Fluggastbrücken hat das Gatepersonal sich vor und nach dem Boarding vom ordnungsge-
       mäßen Zustand des gesamten Boardingpfads zu überzeugen. Auf ordnungsgemäß verschlossenen Türen und
       nicht aufenthaltsberechtigte Personen ist besonders zu achten. Die Bestimmungen hinsichtlich Schen-
       gen/Non-Schengen (clean/unclean) sind strikt zu beachten.
       Bei Einsteigevorgängen über die Gates in der oberen Ebene Flugsteig B (Gates B51-B53-B55-B57-B71-B73-
       B75-B77-
       kommuniziert wurden.

       Bei den Wechselgates A66-A72 ist besonderes Augenmerk auf die Wegeregelungen und verschlusstechnischen
       Anforderungen zu legen. Vor der Abfertigung ist das Gate durch den zuständigen Handlingsagenten zu öffnen.
       Nach Beendigung des Boardings ist darauf zu achten, dass sich keine Fluggäste mehr im Gate aufhalten und
       danach wieder beide Zugänge zu den Wechselgates durch den Handlingsagenten verschlossen werden.
       Auf Weisung des ACC oder der FDSG ist auch während des laufenden Boardings, kreuzenden Passagierströmen
       Vorrang zu gewähren.

       Nach Abschluss des Boardingvorgangs sind alle Gerätschaften in den Ruhe-/Bereitschaftszustand zu versetzen
       und alle Türen, insbesondere die zu den sicherheitsrelevanten Ausgängen, auf sicheren Verschluss zu prüfen.

       Die FDG (ACC) behält sich vor, eine anderweitige Passagierführung anzuordnen, sofern es für die betrieblichen
       Abläufe erforderlich ist.
                                                                                                                         04.06.2024




       FBO_2024                                            Anlage 7                                    Seite 115 / 123
1062

Flughafenbenutzungsordnung für den Flughafen Düsseldorf (EDDL)




                                                                                                                          2024-1-3143
       Flughafenbenutzungsordnung
       SOP zur Nutzung der Lärmschutzhalle


                : Standard Operating Procedure (SOP) zur Nutzung der Lärm-
           schutzhalle (zur FBO, II. Teil 2.7)


              Zweck

       Im vorliegenden SOP werden Abläufe, Aufgaben und Zuständigkeiten für die Durchführung und Erfassung von
       Triebwerksstandläufen mit Luftfahrzeugen am Düsseldorf Airport festgelegt.


              Umfang

       Das SOP gilt für alle Luftverkehrsgesellschaften und deren Mitarbeiter oder Erfüllungsgehilfen, die am Düssel-
       dorf Airport Triebwerksstandläufe durchführen. Das allgemeine Verkehrsverhalten an der Halle 9 ist im SOP
       Anhang 6.4 beschrieben und von allen Verkehrsteilnehmern zu beachten.


              Verantwortung und Anwender

       Für die ordnungsgemäße Abwicklung und Durchführung der Triebwerksstandläufe von Flugzeugen auf dem
       Flughafengelände ist der jeweilige Standlaufberechtigte verantwortlich. Die Einhaltung der SOP liegt im Zu-
       ständigkeitsbereich des Airside Operations Management und Airport Duty Management der FDG. Sie sind An-
       sprechpartner für alle Beteiligten.


              Definition Triebwerksstandläufe

       Triebwerksstandläufe sind alle Leistungs- und Systemkontrollläufe an Flugzeugen.

       Grundsätzlich sollen die Standläufe                                     -
                        -                                     ern, im Wirkungsbereich der Lärmschutzhalle erfolgen.
       Es sind alle Vorkehrungen zu treffen, damit die Dauer des Standlaufes auf ein absolut notwendiges Minimum
       beschränkt wird. Die Belegung und die Nutzung der Lärmschutzhalle (Halle 9) werden durch das ACC (Telefon
       0211 421 51000) koordiniert. Anträge auf Nutzung sind beim ACC zu stellen. Dort werden die Standläufe zeit-
       lich erfasst.


              Abläufe

             Standläufe in der Zeit von 22:00 Uhr bis 6:00 Uhr Ortszeit

       In der Lärmschutzhalle ist ein Display zur Anzeige einer Lärmampel installiert, die durch ihr gelbes Signal an-
       zeigt, wann der Grenzwert nach TA Lärm in der angrenzenden Wohnbebauung erreicht ist. Wenn die Ampel auf
       Rot springt ist der Grenzwert überschritten.

       Probeläufe nach geplanten Wartungsarbeiten (s. Definition SOP Anhang 6.3), z. B. regelmäßiger Engine Wash,
       sind unter Beachtung der installierten Lärmampel bei Aufleuchten des gelben Lichtes unverzüglich zu beenden
       und dürfen nicht vor Beginn der nächsten vollen Zeitstunde und Aufleuchten des grünen Lichtes fortgesetzt
                                                                                                                          04.06.2024




       werden. Ist die Lärmampel erkennbar außer Betrieb z.B. ein schwarzer Bildschirm oder eine dauerhafte graue



       FBO_2024                                           Anlage 8                                      Seite 116 / 123
1063

Flughafenbenutzungsordnung für den Flughafen Düsseldorf (EDDL)




                                                                                                                        2024-1-3143
       Flughafenbenutzungsordnung
       SOP zur Nutzung der Lärmschutzhalle

       Lärmampelanzeige, darf der Lauf nicht begonnen und durchgeführt werden. Die beim Probelauf entstehende
       Lärmbelastung wird fortlaufend aufgezeichnet.

       Bei Missachtung der gelben und roten Lärmampelanzeige behält sich die FDG vor, eine Nutzungssperre von
       bis zu einer Woche gegenüber dem Wartungsunternehmen auszusprechen.

       Bei wiederholtem Verstoß gegen die mit der Lärmampel verbundenen Durchführungsregelungen kann ein ge-
       nerelles Nutzungsverbot für die Nachtstunden (22:00 Uhr bis 06:00 Uhr) festgelegt werden.

       Unter Berücksichtigung der örtlichen Lärmschutzbestimmungen dürfen mit allen anderen Flugzeugtypen in
       der Nachtzeit (22:00 Uhr bis 6:00 Uhr) unabdingbar betriebsnotwendige Standläufe (s. SOP Anhang 6.3 Defini-
       tion planbare/unabdingbare Triebwerksprobeläufe) bei Instandhaltungsarbeiten nur dann durchgeführt wer-
       den, wenn eine solche Maßnahme zur Überprüfung der Sicherheit von Luftfahrzeugen erforderlich ist, um den
       bestehenden Flugplan eines Luftfahrtunternehmens einhalten zu können. Die Standläufe sind bei dem Airport
       Duty Management (Verkehrsleitung) unter Telefon 0211-421 2220 zu beantragen. Für Standläufe oberhalb
            -           n diesem Zeitraum die Lärmschutzhalle zu benutzen. Das Fahren hoher Leistungen ist soweit
       wie möglich zu beschränken. Wartungsarbeiten sind in der Lärmschutzhalle nicht erlaubt.

             Standläufe in der Zeit von 6:00 Uhr bis 22:00 Uhr Ortszeit
                                              -

             Standläufe außerhalb der Lärmschutzhalle

       Kann die Lärmschutzhalle nachweislich aus technischen Gründen (Windverhältnissen) nicht benutzt werden,
       sind Standläufe nur nach vorheriger Zustimmung und nach näherer Anweisung der Airport Duty Manager
       (AMD, Tel. 0211-421 2220) im Rollbereich vor der Lärmschutzhalle oder auf der Nordbahn (RWY 23R im Be-
       reich TWY K2, o. V02-V08) nur tagsüber (06:00 - 22:00 Uhr) zulässig.

       Standläufe in zuvor genannten Bereichen werden durch die Vorfeldaufsicht überwacht und entsprechend dem
       Aufwand seitens FDG gemäß Entgelt nach 2.7 in Rechnung gestellt (z.B. die Bereitstellung einer Brandwache).

             Durchführung/Dokumentation von Standläufen
       Bei der Durchführung von Standläufen sind die Sicherheitsvorschriften der Luftverkehrsgesellschaft und die
       FBO (Flughafenbenutzungsordnung) einzuhalten.
       Aufgrund der örtlichen Lärmschutzbestimmungen ist zu jedem in einer Woche (Montag 06:00 Uhr bis Montag
       06:00 Uhr) durchgeführten Probelauf bis spätestens Dienstag der Folgewoche durch den Standlaufberechtig-
       ten das Onlineformular unter https://www.dus.com/lsh vollständig auszufüllen. Bei erstmaliger Nutzung des
       Online-Tools kann für jeden Mitarbeiter über den genannten Link ein Nutzerprofil beantragt werden. Der Nutzer
       bekommt anschließend eine Mail zur Verifikation der E-Mailadresse (Spam-Order prüfen). Die E-Mailadresse
       muss mit einem Klick auf den Link bestätigt werden. Der Nutzer wird von der FDG freigeschaltet und muss
       seine Kontaktdaten vervollständigen. Nach Abschluss dieses einmaligen Prozesses können nach Anmeldung
       mit den erstellten Login-Daten Formulare angelegt und ausgefüllt werden. Ein aktueller Guide für die Benut-
       zung der Website ist über die Website abrufbar und unter https://www.dus.com/lsh abgelegt.
       Hält ein Wartungsbetrieb die Dokumentationspflichten nicht ein, werden weitere Probeläufe innerhalb und au-
       ßerhalb der Lärmschutzhalle solange untersagt, bis die entsprechenden Dokumente vorliegen.

       Sofern der FDG aufgrund eines Verstoßes gegen die Dokumentations- /Sicherheitsvorschriften oder die
       Durchführungsregelungen für Standläufe behördlicherseits ein Buß-, Zwangs- oder sonstiges Ordnungsgeld
       auferlegt wird, hat das den Standlauf durchführende Wartungsunternehmen die entsprechenden Aufwendun-
       gen der FDG zu ersetzen, soweit dieser den Verstoß zu vertreten hat.
                                                                                                                        04.06.2024




       FBO_2024                                          Anlage 8                                     Seite 117 / 123
1064

Flughafenbenutzungsordnung für den Flughafen Düsseldorf (EDDL)




                                                                                                                         2024-1-3143
       Flughafenbenutzungsordnung
       SOP zur Nutzung der Lärmschutzhalle

       Die FDG erhebt darüber hinaus für die Bearbeitung jedes einzelnen nicht übersandten bzw. unplausibel ausge-
       füllten Formulars ein Bearbeitungsentgeltgemäß Verzeichnis der Leistungsentgelte.

               Sicherheitsvorschriften für die Durchführung von Standläufen, Haftung
       Der Standlaufberechtigte ist für die Einhaltung der vorgeschriebenen Maßnahmen für Triebwerkprobeläufe so-
       wie der Vorschriften des Luftfahrtunternehmens und des Flugzeugherstellers verantwortlich.

       Aufgrund des Verkehrs auf der Ringstraße muss das Einhallen oder Abrollen aus der Lärmschutzhalle aus Si-
       cherheitsgründen von einem Mitarbeiter der Luftfahrtgesellschaft, welche die Halle nutzt, vor Ort überwacht
       und verkehrslenkend begleitet werden.

       Die Berücksichtigung der Windverhältnisse liegt einzig im Verantwortungsbereich des Standlaufberechtigten.
       Nach Beendigung des Triebwerksstandlaufes ist die Lärmschutzhalle sauber und ordnungsgemäß zu hinter-
       lassen.

       Die Benutzung der Lärmschutzhalle für Probeläufe von Triebwerken erfolgt auf Gefahr des Luftfahrzeughalters
       oder des beauftragten Unternehmens. Der Benutzer haftet für alle Schäden, die in Folge der Nichtbeachtung
       der SOP oder sonst allgemeinen anerkannten Regeln entstehen.

       Die FDG übernimmt keinerlei Haftung für Sach-, Personen- oder Vermögensschäden, die aus einer Verletzung
       der Sicherheitsvorschriften resultieren, insbesondere aus Standläufen, die bei ungünstigen oder gefährlichen
       Windverhältnissen/Winden durchgeführt werden. Die Zustimmung der FDG zur Durchführung von Standläufen
       beinhaltet grundsätzlich keinerlei Aussage darüber, ob der jeweilige Standlauf sicherheitstechnisch möglich
       ist.

               Standläufe in der Lärmschutzhalle

       In der Lärmschutzhalle können Probeläufe von Flugzeugmustern bis zur B747-400 in allen Leistungsbereichen
       durchgeführt werden (max. Spannweite 65 m). Die Benutzung der Lärmschutzhalle ist entgeltpflichtig. (Die
       Entgelte sind dem Leistungsverzeichnis in der jeweils gültigen Fassung zu entnehmen).
       LFZ sind rückwärts (Tail in) in die Halle, bis zur Übereinstimmung mit der Markierung auf dem Hallenboden und
       der Triebwerkeinlässe, zu positionieren. Für das Einhallen des Flugzeuges ist der Beauftragte des Flugzeughal-
       ters verantwortlich. Die Warnleuchten sind vor dem Standlauf einzuschalten.

               Sicherheitseinrichtungen der Lärmschutzhalle

       5.7.1    Beobachtungsräume

       Die Lärmschutzhalle ist mit 2 Beobachtungsräumen ausgerüstet. Einer befindet sich auf der westlichen Seite
       und einer auf der östlichen Seite der Lärmschutzhalle. Im westlichen Beobachtungsraum befindet sich eine
       Windrichtungsanzeige.

       5.7.2    Notausgänge
       Die Lärmschutzhalle ist mit 6 Notausgängen versehen. Je 3 Notausgänge befinden sich an der westlichen- und
       3 Notausgänge an der östlichen Seite. Darüber hinaus ist auf jeder Hallenseite ein Schiebetor für die Evakuie-
       rung von Fahrzeugen vorhanden.

       Die Notausgänge sind geschlossen zu halten. Das Verstellen oder Verschließen der Notausgänge ist verboten.
                                                                                                                         04.06.2024




       FBO_2024                                           Anlage 8                                     Seite 118 / 123
1065

Flughafenbenutzungsordnung für den Flughafen Düsseldorf (EDDL)




                                                                                                                       2024-1-3143
       Flughafenbenutzungsordnung
       SOP zur Nutzung der Lärmschutzhalle

       5.7.3   Beleuchtung

       Die seitliche Hallenbeleuchtung kann von jedem Zugang zur Lärmschutzhalle aktiviert werden. Die Deckenflu-
       ter sind vom östlichen Beobachtungsraum aus zu steuern. Die Deckenfluter sind beim Verlassen der Halle wie-
       der auszuschalten.

       5.7.4   Warnleuchten

       Die Warnleuchten sind bei jedem Standlauf einzuschalten und nach Beendigung auszuschalten! Es befindet
       sich in jedem Beobachtungsraum ein Schalter.

       5.7.5   Feuermelde- und Feuerlöschanlage

       2 x 50 kg ABC Pulverlöscher

       In den Beobachtungsräumen an den Seiten der Halle ist jeweils ein Druckknopf-Melder (rot) zur Alarmierung
       der Feuerwehr (direkte Aufschaltung zur Flughafen Feuerwehr) vorhanden.




                                                                                                                       04.06.2024




       FBO_2024                                          Anlage 8                                    Seite 119 / 123
1066

Flughafenbenutzungsordnung für den Flughafen Düsseldorf (EDDL)




                                                                                                             2024-1-3143
       Flughafenbenutzungsordnung
       Anhänge zum SOP Lärmschutzhalle



             Anhänge zum SOP Lärmschutzhalle

            Lageplan der Sicherheitseinrichtungen




                          Abbildung 8: Lageplan Sicherheitseinrichtungen Lärmschutzhalle
                                                                                                             04.06.2024




       FBO_2024                                      Anlage 8                              Seite 120 / 123
1067

Flughafenbenutzungsordnung für den Flughafen Düsseldorf (EDDL)




                                                                                                                    2024-1-3143
       Flughafenbenutzungsordnung
       Anhänge zum SOP Lärmschutzhalle

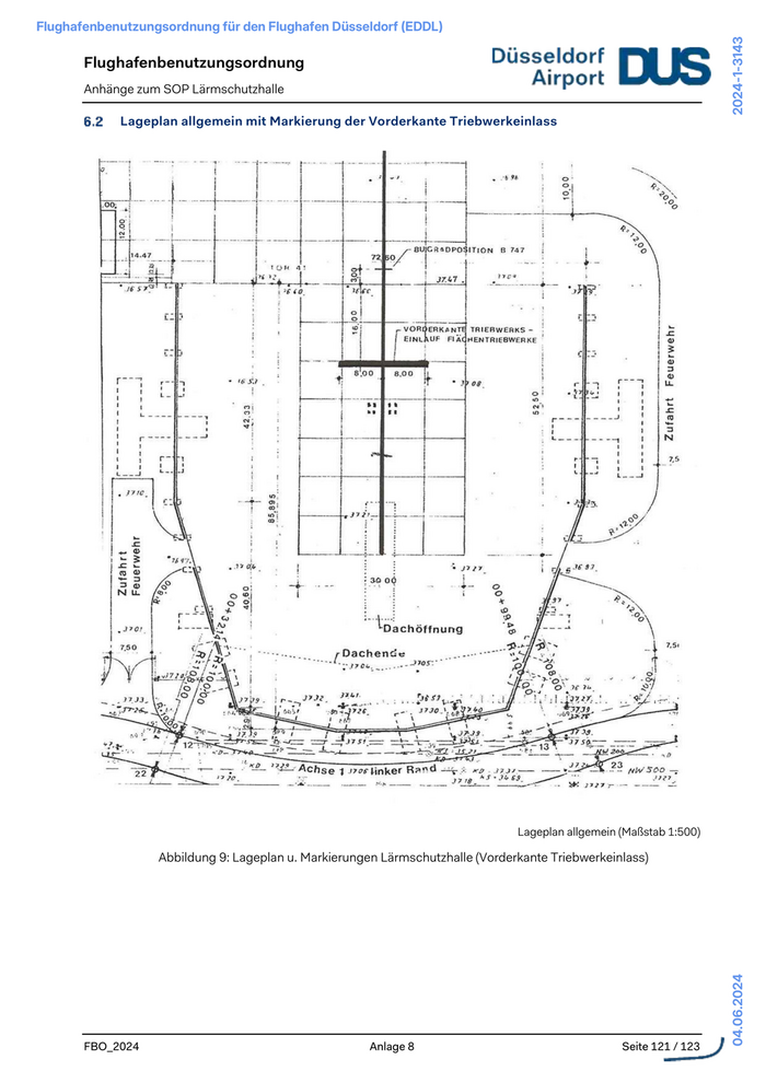
            Lageplan allgemein mit Markierung der Vorderkante Triebwerkeinlass




                                                                               Lageplan allgemein (Maßstab 1:500)

                  Abbildung 9: Lageplan u. Markierungen Lärmschutzhalle (Vorderkante Triebwerkeinlass)
                                                                                                                    04.06.2024




       FBO_2024                                       Anlage 8                                    Seite 121 / 123
1068

Flughafenbenutzungsordnung für den Flughafen Düsseldorf (EDDL)




                                                                                                                             2024-1-3143
       Flughafenbenutzungsordnung
       Anhänge zum SOP Lärmschutzhalle


                   Definition planbare/unabdingbare Triebwerksprobeläufe

       Gemäß der Ordnungsverfügung vom 15.05.2018 erfolgt seit dem 3. Quartal des Jahres 2018 eine Differenzie-
       rung der Triebwerksprobeläufe nach planbar und unabdingbar:
           •        Zeitlich planbare Triebwerksprobeläufe:
                       •     nach turnusmäßigen Wartungsarbeiten und Inspektionen
                       oder
                       •     nach einem turnusmäßigen Austausch von Aggregaten
                       oder
                       •     nach geplanten Instandsetzungs- und Wartungsarbeiten

                    z.B. A, B, C und D-Checks etc.
           •        Unabdingbare Triebwerksprobeläufe
                       •     sind Probeläufe nach Instandsetzungsarbeiten aufgrund eines unvorhersehbaren Ereignisses,
                             beispielsweise: Fehlermeldung durch den Piloten, durch die Anzeige eines technischen Über-
                             wachungssystems des Flugzeugs oder aufgrund anderer nicht vorhersehbarer Ereignisse
                             durchgeführte Triebwerksprobeläufe
                       und
                       •     sind zwingend vor dem nächsten Start eines Flugzeugs erforderlich
                       und
                       •     sind weder planbar noch zeitlich oder räumlich verschiebbar
                       und
                       •     dienen der Vorbereitung einer unmittelbar folgenden und für die Aufrechterhaltung des Flug-
                             betriebs erforderlichen Flugbewegung
       z.B. Geruchsvorfälle, Probeläufe wegen Fehlersuche und nach Fehlerbehebung, Vogelschlag etc.
       Beispiele für Anlass:

        unabdingbar                                               planbar
           • Fehlersuche                                              • Wartung

               •     Vogelschlag                                      •   Planmäßiger Austausch

               •     Betriebsstörung

               •     Fehlermeldung

               •     Geruchsbildung in der Kabine


                   Verkehrsvorschriften Lärmschutzhalle H9


                  Anti-Collisions Lights (red) des LFZ eingeschaltet sind, nicht befahren werden. Alle Fahrzeuge
                                                                                                         Die in der
       nachstehenden Abbildung 10 aufgeführten Markierungen bzw. Lichtzeichen sind zu beachten.
                                                                                                                             04.06.2024




       FBO_2024                                                Anlage 8                                    Seite 122 / 123
1069

Flughafenbenutzungsordnung für den Flughafen Düsseldorf (EDDL)




                                                                                                                      2024-1-3143
       Flughafenbenutzungsordnung
       Anhänge zum SOP Lärmschutzhalle

       Das Queren vor der Halle 9 ist nur dann gestattet, wenn das Technikpersonal Ihnen ein entsprechendes und
       eindeutiges Handzeichen gibt, dass das Vorbeifahren zu diesem Zeitpunkt möglich ist.




                           Abbildung 10: Darstellung Verkehrsvorschriften Lärmschutzhalle H9




                                                                                                                      04.06.2024




       FBO_2024                                         Anlage 8                                    Seite 123 / 123
1070

Zur nächsten Seite