VkBl Nr. 18 1984

Verkehrsblatt Nr. 18 1984

/ 22
PDF herunterladen
2.22

        Abdichtung unter der Kappe
                           M 1=5




                                                                    Neigungswechsel
             II
                                                               DeckschichKen) aus Aspholtbeton
                                                               Schutzschicht aus Asphaltbeton

I




                      —      und        Dichtungsbahn z. B. gemöfi Dicht

                        ~(^ Bitumenklebemasse, gefüllt.
                       -(^ Bitumenvoranstrich auf trockene und saubere Betonfläche


                            AnschluO der Fahrbahncbdichtunq
                                                M 1= 5




                                              schmelzbare bituminöse Fuqenbänder


                                                                Deckschicht(en) aus Asphaltbeton



                   -XnVWWWWWWvXnX v\\\ X.V
                      XX^XxX X^X^X\X\XXnX\X^X\X\X nX X^\\X\X\X\X
                      ^kV XW\\\\\\NV.V XnVvX^^nVaXnN^nXnX X

                              Bituminöse Versiegelung (Lackbitumen)

                               modifizierter Sandasphalt 0/2 mm (einlagig), Schichtdicke 8-20 mm
                              (bis 15% Überkorn im Bereich 2-5mm gem. TLMin-StB 83 Tab.6zulässig).
                               Bitumenvoranstrich auf trockene und saubere Betonflöche




Ausführung(z.B. StöOe. Verleaeverfahren.usw.): DS 835 (AIB),   Bund/Lönder- FachausschuO
DIN 18337, Merkblatt "Bituminöse Brückenbelöge auf                                              BMV
                                                               Brücken-und Ingenieurbau
Beton" und Verarbeitungsrichtlinien sind zu beachten.                                       Abt. StB

Zusötzliche Dichtunqsbahnen z.B. gemöO Dicht A                  Abdichtung mit             Richtzeichnung
sind in Bereichen ohne Walzverdichtung (z.B. an
                                                                  Sandasphalt
Fahrbahnübergöngen, Ablöufen usw.) ca. 30 cm breit
11

2.22
   Längsschnitt
       M 1=75                                Mit leichtem bis nnitteIschw. Verdichtungsgeröt
                                             verdichten (z.B. ÄT 2000-AT 50001

                                                    -Grenzlinie                       OK   Planum

                                         lQQ
                                       Abgestuftes
                                       füter^tnhiles              Abgestuftes Dammbaümaterial       ^
                                                                        Merkblatt




                                                                                             Dammaufbau nach
                                                                                             ZTVE - St B




                                                                                                                \\\


                      V^.   v\ V ^




                XX\\>s'i;                V
              :f//^///s^ /f/^///^ ///^~///           !/>-^y




   Einzelheit „X"
                                                                  Dichtungsaufstrich nach DS 835 ( AIB )
        M   1= 25
                                                                  (z.B. 1 Voranstrich und 2 Aufstriche heiß)
                                                                  Sickerwand aus Vollsteinen (d^lOcm)
                                                                  oder Vliesstoff bis OK. Kammerwand.


                                                                  Grundrohr (0100, teilporös) mit seitlichem
                                                                  Austritt durch die Flügel oder sonstigem
                                                                  Anschluß an den    Vorfluter.


                    Vortl^t
                                                                  Betonsockel



                                                                  Bindiger Boden


              Arbeitsfuge




Anwendungsbereich: Bei Entwässerung der Sickerung                     Bund /Länder - Fachausschuß       BMV
in die VOrflut. Ist eine Sickerung in den Untergrund
                                                                      Brücken-und lngenie;rbau          Abt. StB
möglich, kann auf den Einbau des Grundrohres und
des bindigen Bodens verzichtet werden.
                                                                                                    Richtzeichnung
                                                                      Abdichtung erdbe =
Ausführung : DS 835 (AIB),PIN 18195, DI'; 18337 und
12

2.22
                    Rgumfuge
                        M 1:10

                                                                Arbeitsfolge
                 Fugenband
                                 Erdseite
                                                                1 - Fugenflanken entgraten

                                                                2 - Betonunterlage vorbereiten
                                                                    ( minderfeste Schichten entfernen )

                                                                3 - Haftbrücke auftragen

                                                                A ■■ Fugendichtungsmasse aufspachteln,
                                                                      im Bereich der Fuge evtl. vorhandene
                                                                      Unebenheiten ausgleichen

                                                                5 - Trennschicht aus ca.3cm breitem
                              Hartschaum- '/                          Silikonpapier in die frische
                                                                      Masse einlegen
                                            V/y
                                                                6 - Fugenabdeckband in die frische
                                                                      Masse einlegen

                                                                7 - Übergänge vom Fugenabdeckband
                                                                      zum Beton mit Fugendichtungsmasse
                                                                      ausfüllen




                                                  Einzelheit      Z
                                                       M 1:1
                          Neubau                                                    Sanierung



                             Hartschaumplatte                               vorhandener



                    Haftbrücke                                              Querschnittsengan^ng
                                                                                   Spritzbeton




                                                                                  Vorgefertigtes Fugenabdeckband
                                                                                  aus Polysulfid
          Fugend ichtungsmasse                     Trennschicht
          aus Polysulfid




Anwendungsbereich: Abdeckung von luftseitigen Raum - und              Bund/Länder - Fachausschuß          BMV
Scheinfugen noch Fug 1-3, bei denen die Fugenbänder nicht              Brücken- und Ingenieurbau          Abt. StB
eingebaut werden können. Vorrangig bei der Sanierung von Beton
•flächen.Bei Neutxiuten dort, wo die Betonflächen beschichtet                                          Richtzeichnung
werden.
Fuaenabdeckband und Fugendichtungsmasse aus älterungs -,               Fugenabdeckung mit
13

2.22
                      Ansicht       m moo




          Einzelheit      X ( in mm)
          M 1 =5
                                                                                    Schnitt A-A
                                                                                        M 1 =5




              er
                         0 0
                           0


                                                                         Alle Kanten 1 = 10 gebrochen



Anwendungsbereich: Brücken, Tunnel und Trogbouwerke
Anordnung: In Richtung der fort
                                                            Bund/Länder-Fachausschuß        BMV
schreitenden Kilometrierung auf der rechten Seite des        Brücken-und Ingenieurbau       Abt. St B

Bauwerkes (Flügelwand, Tunnelportal oder Trogbeginn)
                                                                                         Richtzeichnung
Herstellung z.B. mit einer elastischen,wiederverwendbaren
Matrize aus Polyurethan                                          Jahreszahl
14

2.22
                Querschnitt               m i = 20
               —                                   2,00

               35-     11            -SA-                     SO             -so—-


                       n

       ■4--

       co
                       K                                                  Spl
       o
       (D
                                     o
                                     o                               /                               Einbindetiefe „t"
                                                                   Je''                              nach Zulassung
                                                   ' il   •




                                              Draufsichten                m 1 • is


  Fußform 1: H = 2,00 m, 4 Anker M 16                                                Fußform 3: H 5 3,00 m, 8 Anker M 16
                                         Im                                                              im
                                                                                                       —4"^

                     =f=
                                     ü   co

               -1-           -1-

                     p i                 s
                                              o
                                              tn


               +
                     rh 4                     (N


                     -H—
                                     Tzr
                                     Tco-                                                    LJ                 o
                                                                                                                m
         JA4                                                                                 m
          3S          260          3S

                       330                                                           l1^
                                                                                     rft                  Hro
                                                                                      3S     260     3S
  Fußform 2: H = 2,S0m, 6 Anker M16
                                                                                              330


               +
                                         o                                              Ansicht „A" mms
                                         00




                     rpr
                     LU
                                         o
                                         00
                                              o
                                              f)




                                   IJico
         3S           260 ,        Ji5
                       330


Statische Nachweise erforderlich! Nachzuweisen ist auch die
Weiterleitung der Schnittkräfte in Kappe und Kragplatte.
                                                                                      Bund/Länder- Fachausschuß       BMV
                                                                                       Brücken-und Ingenieurbau      Abt. StB
Anwendungsbereich: Kappen nach Kap 1 oder ähnlich.
Anker: Verbundanker mit Zulassung des JfBt. Für die                                                                 Richtzeichnung
angegebenen AnkergröOen, Einbindetiefen und Ankeranord                                     Lärmschutzwände
nungen ist der Nachweis der Standsicherheit erbracht.
15

Querschnitt m 1 = 20                                                                       2.22

                                        2.00



                                                                                 Einbindetiefe „t"
                                                                                 nach Zulassung

                                                                                 t"bei Verwendung v. Anker M16.
                                                         /                       2t" bei Anker M 20.



                                        «^1 11=.---

                                                                         Dicht




                                        Draufsichten          M 1 = 15



      Fußform ä: H ? 3,50m^ 4 Anker M 16                      Fußform 6 ; H = 4,50m, 6 Anker M 20
                                                  -II
                                        ±—1        T


        144'-.-
                  m
                                    135 I
             ^ 330         - 300        170
                             800
                                                                  1 295 ,                    U21J
                                                                 - 330 ^, 300                J70^
      Fußform 5 : H = 4,00 m, 4 Anker M 20                                         800

                                                   im
                                                   100


                                    I                    o
        144-                                             m
                                                         CN

                                          -I-
          It
        35          295                         35 To?
                   330        300       170
                            800

Statische Nachweise. Anwendunqsbereich. Anker. Fuge
und   Pfosten     siehe Blatt 1 .
                                                                 Bund/Länder - Fachausschuß            BMV
                                                                  Brücken-und Ingenieurbau            Abt. StB
Korrosionsschutz: Feuerverzinkung nach DIN 50976, 85|jm,
2 Deckbeschichtungen je BOpm auf PVC- bzw. PVC-Kombi-
                                                                                                     Richtzeichnung
nationsgrundlage nach TL 918300 81.75 bzw. 77. Ankerstan           Lärmschutzwände
gen und Muttern aus nichtrostendem Stahl A4-70 nach DIN
16

Prüfung von Werkstoffen für Fugenbänder                                                                                                     2.22

  1. Allgemeines                                                                   gungen angepaßt sein. Die Empfehlungen der STUVA^*
                                                                                   sind zu beachten.
        1.1 Die nachfoigend genannten Anforderungen geiten für Fu
            genbänder aus PVC und Elastomeren, mit denen Fugen              1.3 Die Werkstoffe müssen beständig gegen natüriiche saure,
            gegen Sickerwasser abgedichtet werden soiien. Bei ande              aikaiische oder saizhaitige (Auftausalze) Wässer und für
            ren Werkstoffen geiten die Prüfungen nach Rücksprache               diese undurchiässig sein und dürfen ihrerseits angrenzen
            mit einer entsprechenden Prüfanstalt sinngemäß.                        de Bauteiie nicht chemisch angreifen. Die Beständigkeit
                                                                                   gegen sonstige aggressive Wässer ist im Einzeifaii zu un
            Bei Fugen, die druckwasserdicht oder beständig gegen er
                                                                                   tersuchen.
            wärmte Wässer(z.B. Kraftwerke)sein müssen,sind zusätz-
            iich Untersuchungen durchzuführen. Sollen die Bänder            1.4 Die nachfoigend genannten Prüfungen sind von einer
            gleichzeitig als Öl- oder Chemikaliensperre dienen,so sind          staatlich anerkannten Materiaiprüfungsanstait durchzu
            ebenfails ergänzende Untersuchungen vorzunehmen.                       führen. Werden die nach Ziffer 2. geforderten Werte für
                                                                                   das Materiai im Aniieferungszustand nicht erreicht, sind
        1.2 Die Fugenbänder müssen so geformt sein, daß eine gute
                                                                                   die Bänder für den Brücken- und Ingenieurbau ungeei
            Verankerung im Beton gewährieistet und damit eine Um-
                                                                                   gnet und die weiteren Prüfungen (nach Beanspruchung)
            iäufigkeit ausgeschiossen ist (vgi. Richtzeichnungen
                                                                                   erübrigen sich. Die nach der Beanspruchung zugeiasse-
            „Fug"). Ihre Dehnkörper müssen den erwarteten Bewe-
                                                                                   nen Änderungen beziehen sich auf die im Aniieferungszu
                                                                                   stand ermitteiten Werte,
  2. Anforderungen an die Werkstoffe
                                                          Überwachung*)   Prüfung nach                         Anforderungen
                          Eigenschaften
                                                                           Abschnitt

                                                                                                  Elastomere                    PVC welch

2.1      Allgemeine Beschaffenheit                                                               frei von Blasen, Rissen und Lunkern

2.2      Reißfestigkeit                                                      4.1                 min. 10 N/mm^

2.3      RelBdehnung                                                         4.1                 min. 300%

2.4      Elastizitätsmodul                                                   4.2                                              (5—25) N/mm2
2.5      Shore-A-Härte                                                       4.3                 50—70 Shore A                60—so Shore A

2.6      Welterreißwiderstand                                                4.4                 min. 6 N/mm^

2.7      Druckverformungsrest
                       bei 23« C                                                                   max. 20%
                                                                             4.5
                       bei 70® 0                                                                   max. 35%

2.6      Verhalten bei          Reißfestigkeit                               4.6.1               max. 30 N/mm^
         tiefen Temperaturen
                                Reißdehnung                                  4.6.1               min. 200 %

                                Härte                                        4.6.2               max. 90 Shore A

                                Falzen                                       4.6.3               Es dürfen keine Risse auftreten

2.9      Verhalten nach         Änderung Reißfestigkeit                                          max 25 %
         Wärmealterung
                                Änderung Reißdehnung                         4.7                 max. 30% relativ'')
                                Änderung Härte                                                   max. 10 Shore A

                                Änderung E-Modul                                                                                max. 50%

2.10     Verhalten nach         Änderung Reißfestigkeit                                          max. 20%
         Lagerung In
                                Änderung Reißdehnung                                             max. 20% relativ^)
         Kalkmilch
                                Änderung Härte                               4.6                 max. 10 Shore A

                                Änderung E-Modul                                                                                max. 50%

2.11     Verhalten nach Ein     Änderung Reißfestigkeit                                          max. 20%
         wirkung von Mlkro-                                                                      max. 20% relativ*')
                                Änderung Reißdehnung
         organlsmeri
                                Änderung Härte                               4.9                 max. 10 Shore A

                                Änderung E-Modul                                                                                max. 50%

2.12     Verhalten nach         Änderung der Dehnung
         Lagerung In            nach 14 Tagen                                 4.10               max. 20% relativ^)
         Bitumen
                                nach 90 Tagen                                                    max. weitere 15% relativ^)
2.13     Verhalten nach Ozonbeanspruchung                                     4.11               Rißstufe 0
                                                                                                 (Keine Risse)
2.14     Verhalten nach         Änderung Reißfestigkeit                                          max. 20%
         Bewltterung^)          Änderung Reißdehnung                          4.12               max. 20% relativ*')
                                Änderung Härte                                                   max. 10 Shore A

                                Änderung E-Modul                                                 max. 50%

2.15     Verhalten der Fügenaht                                               4.13               Fügefaktor min. 0,6
*) E s Eigenüberwachung                                                                    Bund / Länder - Fachausschuß                     BMV
   F a Fremdüberwachung
                                                                                             Brücken- und Ingenieurbau                  Abt. StB
      1 « laufend
      2 B etwa halbjährlich                                                                                                             Richtlinie
      3 B etwa Jährlich                                                                            Prüfung von
17

2.22
     3.      Prüfklima und Vorbehandlung                                     Prüfvorschrift und Beanspruchung:
                                                                                                       Die Materialien sind mit einem Erd-
             Die Prüfungen werden, soweit keine anderen Bedingun
                                                                                                       eingrabeversuch^' zu prüfen, bei dem
             gen genannt sind, im Normaikiima DiN 50 014 — 23/50
                                                                                                       sie einer natürlichen Erdflora (Bakte
             — 2 (Normaikiimate) durchgeführt. Die Probekörper
0
                                                                                                       rien und Pilze) ausgesetzt werden.
x:
             werden vor der Prüfung mindestens 24 Stunden in dem                                       Dazu sind Prüfkörper für den Zugver
o            genannten Normalklima gelagert. Die Dicke der Prüfkör                                     such (Prüfung der ReiBfestigkeit und
             per beträgt 2 mm bzw. 6,3 mm.                                                             Reißdehnung) herzustellen und für
E                                                                                                      mindestens 1 Jahr einzugraben.
     4.      Prüfungen und Prüfvorschriften
<                                                                                                      Nach der Lagerung Prüfung wie bei
     4.1     ReiBfestigkeit und ReiBdehnung (Zugversuch)                                               4.1, 4.2 und 4.3
CD
                                      Elastomere      PVC-weich                                        Anmerkung:
                                                                                                       Für eine Vorauswahl der zu benutzen
             Prüfvorschrift:          DIN 53 504      DiN 53 455
             Probekörper:
                                                                                                       den Materialien kann eine Prüfung
                                        82          Nr. 5
                                                                                                       nach der ISO-Vorschrift 846/19783'
             Prüfgeschwindigkeit: 200 mm/min. Vli (200 mm/min)
                                                                                                       Methode A und B durchgeführt wer
     4.2     Eiastizitätsmodui im Zugversuch                                                           den, bei der das Material 4 Wochen
                                                                                                  lang einem Gemisch definierter
             Prüfvorschrift:      in Anlehnung an DiN 53 457;
                                                                                                  Schimmeipilzarten ausgesetzt wird.
                                  Ermittlung des E-Moduls als
                                  Sekanten-Modul bei der Dehnung      4.10 Verhalten nach Lagerung In Bitumen
                                  zwischen 1% und 2%
                                                                             Prüfvorschrift:       DIN 16 937 Abschn. 6.6
             Probekörper:         nach Bild 2b, DIN 53 457                   Beanspruchung:        Lagerung in Bitumen 14 bzw.90 Tage
             Prüfgeschwindigkeit: 5 mm/min.                           4.11 Beanspruchung durch Ozon
                                                                           Prüfvorschrift:   in Anlehnung an DIN 53 509
     4.3     Härte                                                         Beanspruchung:    Lagerung im Ozonschrank (Ozonkon
             Prüfvorschrift:      DIN 53 505                                                 zentration 50 pphm, + 23® C, 55%
                                                                                             rel. Luftfeuchte, 20% Dehnung, 96
     4.4     WeiterreiBwiderstand                                                            Stunden).
             Prüfvorschrift:      DIN 53 507                          4.12 Verhalten nach BewItterung
             Prüfkörper:          A                                        Prüfvorschrift:    Kurzprüfung der Wetterbeständigkeit
                                                                                                   nach DIN 53 387.
     4.5     Druckverformungsrest
                                                                             Beanspruchung:       Bestrahlungsenergie 4500 MJ/m^
             Prüfvorschrift:      DIN 53 517 Teil 1                                               (entspricht im Xenotestgerät „450" ei
             Probekörper:         A                                                                 ner Bestrahiungsdauer von etwa 2500
             Beanspruchung:       168<Stunden bei + 23^ C,                                          Stunden)
                                  24 Stunden bei + 70® C                     Diese Prüfung ist nur für iuftseitig auBeniiegende Fugenbän
                                                                             der durchzuführen.
     4.6     Verhalten bei tiefen Temperaturen
                                                                      4.13 Verbindungen:
     4.6.1   ReiBfestigkeit und ReiBdehnung (Zugversuch)                     Die Prüfung der Fügenähte erfolgt im Zugversuch mit Probe
             Prüfvorschrift:     entsprechend Abschnitt 4.1                  körpern entsprechend Abschnitt 4.1. Die Fügestelle soll in
             Prüftemperatur:     — 20® C, Lagerung vor der Prü               der Mitte der MeBiänge des Probekörpers liegen.
                                 fung 24 Stunden                      5.     Überwachung:
                                                                             Die Einhaltung der festgelegten Anforderungen ist durch
     4.6.2 Härte                                                             Überwachung in Anlehnung an DIN 7865, Teil 1 nachzuwei
             Prüfvorschrift:      entsprechend Abschnitt 4.3 sowie           sen. Art und Umfang der Prüfungen sind in der Tabelle unter
                                  in Anlehnung an DIN 53 505                 Ziffer 2. dargestellt.
             Prüftemperatur:      — 20® C, Lagerung vor der Prü       6.     Kennzeichnung der Bänder:
                                  fung 7 Tage                                Wenn die Materialien alle Prüfungsanforderungen erfüllt ha
o>                                                                           ben, sind die Bänder im Abstand von höchstens drei Metern
y—   4.6.3 Faizen
                                                                              mit dem Kennzeichen Prüf 2, dem Namen des Herstellers,
 I           Prüfvorschrift:      in Anlehnung an DiN 53 361
00                                                                           dem Herstellungsdatum und der Angabe der Werkstoffart
             Prüftemperatur:      — 20® C, Lagerung vor der Prü              dauerhaft zu versehen. Die Genehmigung zur Führung des
0                                 fung 7 Tage                                Kennzeichens erteilen die BAM, Berlin oder andere staatli
X
                                                                             che Materiaiprüfungsämter.
     4.7     Verhalten nach Wärmealterung
             Prüfvorschrift:      wie bei 4.1,4.2 und 4.3 sowie DiN
                                                                      Schrifttum:
                                  53 506
                                                                           Studiengeseiischaft für unterirdische Verkehrsaniagen.
             Beanspruchung:       26 Tage bei + 70® C,für eine gra
                                                                           G. Girnau und N. Klawa: „Empfehlungen zur Fugengestaltung
                                  fische Darstellung Ermittlung von
                                                                           im unterirdischen Bauen", veröffentlicht in „Die Bautechnik",
                                  mindestens 3Zwischenwerten in
                                                                           Heft 10, Oktober 1973.
                                  nerhalb dieser Zeitspanne erfor
                                  derlich
                                                                      3' DIN 53 739: Prüfung von Kunststoffen; Einfluß von Pilzen und
                                                                           Bakterien; visuelle Beurteilung; Änderung der Masse oder der
     4.8     Lagerung in Kaikmiich                                         mechanischen Eigenschaften. Entwurf Oktober 1982.
             Prüfvorschrift:      wie bei 4.1, 4.2 und 4.3            3' International Organisation for Standardization:
             Beanspruchung:       Lagerung der Probekörper 28 Ta         Piastics. Recommended practice for the evaluation of the resi-
                                  ge bei Normalklima in übersättig       stance of piastics to fungi by Visual examination.
                                  ter Kaikmiich (mit Bodensatz).
                                  Nach Entnahme aus der Kalk
                                  milch werden die Probekörper                    Bund / Länder - Fachausschuß                 BMV
                                  gründlich mit Wasser abgespült,                   Brücken- und Ingenieurbau                 Abt. StB
                                  abgetrocknet und sofort geprüft.
                                                                                                                            Richtlinie
     4.9     Einwirkung von R/likroörganismen                                             Prüfung von
             Fugenbänder, die bei ihrem Einsatz mit Erde in Kontakt                                                          Prüf 2
18

2.22
         QUGrSChnitt - überbau / Widerlager                                          Querschnitt - überbau / stütze
                                M1:50                                                                 M1:50




         Querschnitt - überbau / Widerlager                                         Draufsicht - Stützenbereich
                                M 1:20                                                                M1:20


                                                      c-W
                                                               1

                                                      ^ri
                                                      !' ^
                                                      i!   A
                                                           X


                                                                     i
                          250                              '



                  1750 a =250                          I 250       1250

                                                      il 1750 a=250




                                                                            Schnitt                       Schnitt A-A/ B-B
                A-^                                                       C-C / B-B                             M1:10
                                                                            M1:10
        Einzelheit X              m i:2
      Verankerung der Abdeckplatten
                mittels Dübel
          auch bei nachträglichem Einbau
                                 Dübel M 8


                                   Zylinderschraube
                                   M8x35 DIN8Z»                                       Verankerung
                                                                                     igem. Einzelheit X

                                  Scheibe 8a
                                   DIN 125


                                   Abdeckplatte
                                   mit Langlöchern
                                  10/20a =s.o.



Anwendungsbereich: Abdeckung von Nischen oder Zwischen -
räumen zwischen Bauteilen (z.B. zwischen Widerlager oder
                                                                                    Bund / Länder-Fachausschuß
                                                                                                                          BMV
                                                                                     Brücken - und Ingenieurbau
Stütze und Überixiu )zur Vermeidung von Vogeleinflug oder Vogel                                                           AbiStB
brut ( Bauwerksverschmutzung und Vögeltod).
                                                                                                                        Richtzeichnung
Abdeckplatten bei   20cm aus Plexiglas, bei H >20-60cm aus
Makroion(Besichtigungsmöglichkeit der Lager).In Sonderfällen auch
19

2.22
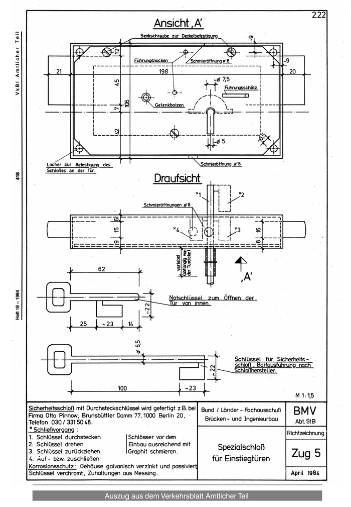
                                                             Ansicht.Ä
                                                       Senkschraube zur Deckelbefestiqurq




                                                 Fuhrunqsnocken              Schmieröffnunq0ö


                                                               198
                                                                                                 75
                                                                                                 Führungsschiitz



                                                             Gelenkbolzen       /      '         \




       Löcher zur Befestigung des                                               ^^Schrnjeröffnunq ^8
       SchloOes an der Tür.

                                                             Draufsicht
                                                                                             I       i ^"2
                                                        Schmieröffnunqen jaTß                I
                                                                                             L__J
                                    co,
                 i                                                                                            —Ii
                                    in                                </                                       ID



                                    cn                                                                         CXr




                              62
                                                                           r  ¥
                                                                           fi_L                       t
              f                                                                                         ,A'
                                                                     Notschlüssel     zum        Offnen der
                                                        fN
                                                                     Tür   von innen
                                                        fN
                                                         X




               1«-
                     25
                              ■           j. ^
                                                 in
                                                 i£>




                                                   t                                   <N
                                                                                                      Schlüssei für Sicherheits -
                                                                                                      schlofi . Bartausführuno noch
                                                                                       CSI            Schlonhersteller.
                                                                                        l
                                                                                       -Sr-


               I                     100
                                                                                                                             M 1.1,5

Sicherheitsschloß mit Durchsteckschlüssel wird gefertigt z.B. bei                   Bund / Länder - Fachausschuß
Firma Otto Pinnow, Brunsbüttler Damm 77,1000 Berlin 20,                                                                     BMV
                                                                                     Brücken - und Ingenieurbau              AbtStB
Telefon 030/331 50 AS.
JLSchlienyorggng :                                                                                                        Richtzeichnung
1. Schlüssel durchstecken                   Schlösser vor dan
20

Zur nächsten Seite