20161129-datenblatt-3616e03240-sianf-rev1

Dieses Dokument ist Teil der Anfrage „Beratung: GRS (Gesellschaft für Anlagen- und Reaktorsicherheit)

/ 2
PDF herunterladen
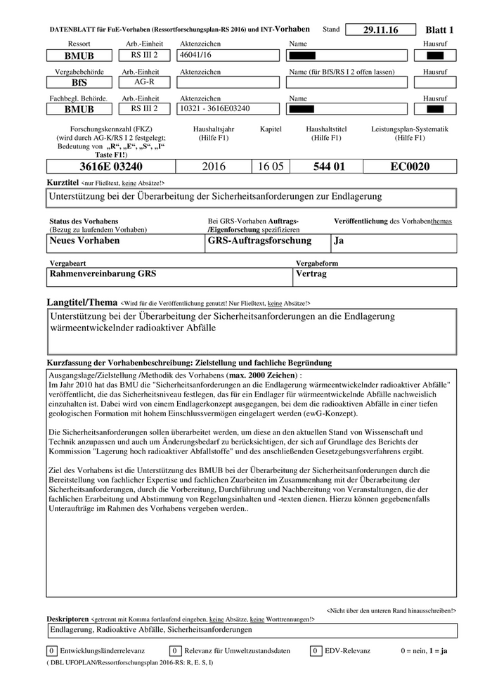
( DBL UFOPLAN /Ressortforschungsplan 2016 -RS: R, E. S, I)  DATENBLATT für FuE -Vorhaben ( Ressortforschungsplan -RS 2016 ) und INT -Vorhaben  Stand  29.11.16 Blatt 1  
 
Ressort   Arb.-Einheit   Aktenzeichen   Name   Hausruf  
BMU B  RS III 2   46041/16      
 
Vergabebehörde   Arb.-Einheit   Aktenzeichen   Name  (für BfS /RS I 2  offen  lassen)   Hausruf  
BfS  AG-R                      
 Fachbegl. Behörde .  Arb.-Einheit   Aktenzeichen   Name   Hausruf  
BMUB   RS III 2   10321 - 3616E03240      
  
Forschungskennzahl (FKZ)  
(wird durch AG -K/RS I 2  festgelegt; 
Bedeutung von   „R“, „E“, „S“, „I“   
Taste F1 !) Haushaltsjahr  
(Hilfe F1)  Kapitel  Haushaltstitel  
(Hilfe F1)  Leistungsplan -Systematik  
(Hilfe  F1) 
3616E  03240 2016  16 05   544 01  EC0020    
 
Kurztitel <nur Fließtext, keine  Absätze!>  
 
Status des Vorhabens  
(Bezug zu laufendem Vorhaben)  Bei GRS -Vorhaben  Auftrags -
/Eigenforschung  spezifizieren  Veröffentlichung  des Vorhaben themas  
Neues Vorhaben  GRS-Auftragsforschung  Ja 
 
Vergabe art Vergabeform  
Rahmenvereinbarung GRS  Vertrag  
 
 
Langtitel/Thema <Wird für die Veröffentlichung genutzt! N ur Fließtext, keine  Absätze!>  
Kurzfassung der Vorhabenbeschreibung: Zielstellung und fachliche Begründung  
 
<Nicht über den unteren Rand hinausschreiben!>  
Deskriptoren <getrennt mit Komma fortlaufend eingeben, keine  Absätze, keine  Worttrennungen!>  
 
0 Entwicklungsländerrelevanz  0 Relevanz für Umweltzustandsdaten  0 EDV -Relevanz  0 = nein, 1 = ja    Unterstützung bei der Überarbeitung der Sicherheitsanforderungen zur Endlagerung  
Unterstützung bei der Überarbeitung der Sicherheitsanforderungen an die Endlagerung 
wärmeentwickelnder radioaktiver Abfälle  
Ausgangslage/ Zielstellung / Methodik des Vorhabens  (max. 2000 Zeichen ) : 
Im Jahr 2010  hat das BMU die "Sicherheitsanforderungen an die Endlagerung wärmeentwickelnder radioaktiver Abfälle" 
veröffentlicht, die das Sicherheitsniveau festlegen, das für ein Endlager für wärmeentwickelnde Abfälle nachweislich 
einzuhalten ist. Dabei wird von eine m Endlagerkonzept ausgegangen, bei dem die radioaktiven Abfälle in einer tiefen 
geologischen Formation mit hohem Einschlussvermögen eingelagert werden (ewG -Konzept).  
 
Die Sicherheitsanforderungen sollen überarbeitet werden, um diese an den aktuellen Stand von Wissenschaft und 
Technik anzupassen und auch um Änderungsbedarf zu berücksichtigen, der sich auf Grundlage des Berichts der 
Kommission "Lagerung hoch radioaktiver Abfallstoffe" und des anschließenden Gesetzgebungsverfahrens ergibt.  
 
Ziel des Vorhabens ist die Unterstützung des BMUB bei der Überarbeitung der Sicherheitsanforderungen durch die 
Bereitstellung von fachlicher Expertise und fachlichen Zuarbeiten im Zusammenhang mit der Überarbeitung der 
Sicherheitsanforderungen , durch die Vorbereitung, Durchf ührung und Nachbereitung von Veranstaltungen, die der 
fachlichen Erarbeitung und Abstimmung von Regelungsinhalten und -texten dienen . Hierzu können  gegebenenfalls 
Unterauftr äge im Rahmen des Vorhabens vergeben  werden. . 
 
Endlagerung, Radioaktive Abfälle, Sicherheitsanforderungen
1

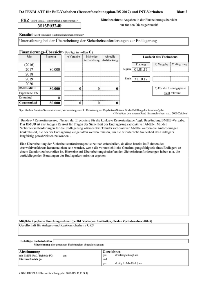
( DBL UFOPLAN /Ressortforschungsplan 2016 -RS: R, E. S, I)  DATENBLATT für FuE -Vorhaben ( Ressortforschungsplan -RS 2017 ) und INT -Vorhaben  Blatt 2  
 
FKZ  <wird von S. 1 automatisch übernommen!>   Bitte beachten: Angaben in der Finanzierungsübersicht  
3616E 03240  nur für den Dienstgebrauch!  
 
Kurztitel  <wird von Seite 1 automatisch übernommen !> 
 
Finanzierungs -Übersicht  (Beträge in vollen € ) 
Jahr Planung   *) Vergabe  Bisherige  
Aufstockung  Aktuelle  
Aufstockung   Laufzeit des Vorhabens  
(2016 )                           Planung   *) Vergabe  Verlängerung  
2017  80.000                     Beginn  01.01.17              
2018                                
2019                           Ende  31.10.17              
2020                           
BMU B-Mittel  80.000   0 0 0  *) Für die Planungsphase  
Eigenmittel FN                            nicht  relevant  
Drittmittel  0                    
Gesamtmittel  80.000   0 0 0 
 
Spezifisches Bundes -/Resssortintresse; Verwendungszweck: Umsetzung der Ergebnisse/Nutzen für die Erfüllung der Ressoraufgabe   
<Nicht über den unteren Rand hinausschreiben ; max. 2000 Zeichen >    
 
Mögliche / geplante Forschungsnehmer (bei lfd. Vorhaben: Institution, die das Vorhaben durchführt)  
Gesellschaft für Anlagen -und Reaktorsicherheit / GRS  
      
      
 
Beteiligte Facheinheiten        
 Mitzeichnung  aller genannten Facheinheiten abgeschlossen am        
 
Abstimmung   Gezeichnet   
mit BMU B Ref. / Behörde FG:       am       gez.       (Fachbegleitung) am       
Einvernehmlich  ja  und  
 gez.       (Leitg d. Arb. -Einh.) am       
 Unterstützung bei der Überarbeitung der Sicherheitsanforderungen zur Endlagerung  
 Bundes - / Ressortinteresse ,  Nutzen der Ergebnisse für die konkrete Ressortaufgabe  / ggf. Begründung BMU B-Vergabe:  
Das BMUB ist zuständiges Ressort für Fragen der Sicherheit der Endlagerung radioaktiver Abfälle. Mit den  
Sicherheitsanforderungen für die Endlagerung wärmeentwickelnder radioaktiver Abfälle werden die Anforderungen 
konkretisiert, die bei der Endlagerung eingehalten werden müssen, um die erforderliche Sicherheit des Endlagers 
langfristig gewährleisten zu könn en. .  
 
Eine Überarbeitung der Sicherheitsanforderungen ist zeitnah erforderlich, da diese bereits im Rahmen des 
Auswahlverfahrens heranzuziehen sein werden, wenn die voraussichtliche Genehmigungsfähigkeit eines Endlagers an 
einem Standort zu beurteilen is t. Hinweise auf Überarbeitungsbedarf an den Sicherheitsanforderungen haben u. a. die 
zurückliegenden Beratungen der Endlagerkommission ergeben.
2