LA22-BAUT-LK-B-LOES

Abitur-Prüfung in Hessen aus 2022 in Bautechnik

/ 10
PDF herunterladen
Nicht für den Prüfling bestimmt Hessisches Kultusministerium Landesabitur 2022 
Bautechnik Lösungs- und Bewertungshinweise 
Leistungskurs Vorschlag B 
Seite 1 von 10  I Erläuterungen 
Voraussetzungen gemäß KCBG und Abiturerlassen BG jeweils in der für den Abiturjahrgang 
geltenden Fassung 
 
Standardbezug  
Die nachfolgend ausgewiesenen Kompetenzbereiche sind für die Bearbeitung der jeweiligen Aufgabe 
besonders bedeutsam. Darüber hinaus können weitere, hier nicht explizit ausgewiesene Kompetenzen 
für die Bearbeitung der Aufgabe nachrangig bedeutsam sein, zumal die Kompetenzen in engem Bezug 
zueinanderstehen. Die Operationalisierung des Bezugs zu den Kompetenzbereichen des Standardbe-
zugs erfolgt in Abschnitt II. 
 
Aufgabe Kompetenzen 
K1 K2 K3 K4 K5 
1.1 X  X   
1.2    X  
1.3    X  
2.1    X  
2.2    X  
2.3 X     
2.4    X  
2.5  X    
2.6    X  
2.7  X   X 
2.8     X 
3.1    X  
3.2     X 
3.3 X  X  X 
 
Inhaltlicher Bezug  
Die nachfolgend ausgewiesenen Themenfelder sind die wesentliche inhaltliche Grundlage für die vor-
liegenden Aufgaben. Darüber hinaus können weitere, hier nicht explizit ausgewiesene Themenfelder 
für die Bearbeitung nachrangig bedeutsam sein. 
Q1: Tragwerkssysteme I 
Q2: Energiesparendes Bauen 
Q3: Tragwerkssysteme II 
verbindliche Themenfelder: Kräfte, Lasten, Spannungen (Q1.1), Statisch bestimmte Träger (Q1.2), 
Festigkeit von Bauteilen (Q1.3), Wärmephysikalische Grundlagen (Q2.1), Bauteilnachweise und Be-
rechnungsverfahren (Q2.2), Dachkonstruktionen und -aufbauten (Q3.1), Nachweis statischer Systeme 
(Q3.2) 
 
 
II Lösungshinweise 
In den nachfolgenden Lösungshinweisen sind alle wesentlichen Gesichtspunkte, die bei der Bearbei-
tung der einzelnen Aufgaben zu berücksichtigen sind, konkret genannt und diejenigen Lösungswege 
aufgezeigt, welche die Prüflinge erfahrungsgemäß einschlagen werden. Selbstverständlich sind jedoch 
Lösungswege, die von den vorgegebenen abweichen, aber als gleichwertig betrachtet werden können, 
ebenso zu akzeptieren.
1

Nicht für den Prüfling bestimmt Hessisches Kultusministerium Landesabitur 2022 
Bautechnik Lösungs- und Bewertungshinweise 
Leistungskurs Vorschlag B 
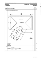
Seite 2 von 10  Aufg. erwartete Leistungen BE 
I II III 
1.1 entwerfen, zeichnen, beschriften 
 
 
 
 
 
 
 
 
 
 
 
 
 
 
 
 
 
 
entwerfen 
zeichnen 
beschriften 3 4 
 6 
 
 
1.2 berechnen 
( )5,49m+1,20m
2 3,345mOrtgang 4,08mcos35 cos35= = =   
  1 2
2

Nicht für den Prüfling bestimmt Hessisches Kultusministerium Landesabitur 2022 
Bautechnik Lösungs- und Bewertungshinweise 
Leistungskurs Vorschlag B 
Seite 3 von 10  Aufg. erwartete Leistungen BE 
I II III 
1.3 berechnen 
5,49OK Firstpfette=6,75m+0,10m+ 0,12m tan 35 8,69 m2m  −  =       
zeichnen 
 
 
 
 7  
 
 
 
 
 
 
 
 
 
 
 
 
 
 
 
3  
4 
 
 
 
 
 
 
 
 
 
 
 
 
 
 
 Summe 30 10 8 12
3

Nicht für den Prüfling bestimmt Hessisches Kultusministerium Landesabitur 2022 
Bautechnik Lösungs- und Bewertungshinweise 
Leistungskurs Vorschlag B 
Seite 4 von 10  Aufg. erwartete Leistungen BE 
I II III 
2.1 ermitteln 
 
Ständige Last der Dachkonstruktion (g k): 
– Falzziegeldeckung:  = 0,550kN/m2 
– zweilagige Lattung:                                            = 0,010kN/m2 
– 8/18 cm Sparren C24:     (5,0kN/m3 · 0,08m · 0,18m):0,58m  = 0,124kN/m2 
– 18 cm Dämmung 040:    (0,4kN/m3 · 0,50m · 0,18m):0,58m  = 0,062kN/m2 
– 1,50cm OSB-Platte:        6,5kN/m3 · 0,015m = 0,098kN/m2 
– 1,50cm Gipsfaserplatte:  11,0kN/m3 · 0,015m = 0,165kN/m2 
                                                                                                       g k= 1,009kN/m2 
auf die Grundfläche bezogen: 2
2
k1,01kN/m1,23kN/mcos35g= =  
 
 
Veränderliche Last der Dachkonstruktion (q k): 
 
Wiesbaden: Dachneigung 35°, Schneelastzone 1, Höhe 117m ü. NHN, Windlast-
zone I, Bauwerkshöhe ≤ 10,00m → 
( )2 2
k60 35μ0,8 0,65 kN/m 0,433 kN/m30is s −  == =    
2 2
k p pe 0,50kN/m 0,7 0,35kN/m w q c===   
 
bestimmen 
 
Eigenlast: 
gd = 1,23kN/m2 ∙ 1,35 = 1,66kN/m2  
 
Schnee:  
2 2
ds 1,5 0,43kN / m 1,5 0,65kN / mi s===   
 
Wind:  
wd = 0,35kN/m2 ∙ 1,50 = 0,53kN/m2   
 
 
 
 
 
 
 
 
 
 
 
 
 
 
 
 
 
 
 
 
 
3  
 
 
 
 
 
 
 
 
 
 
10 
 
 
 
 
 
 
 
 
 
 
 
  
 
 
 
 
 
 
 
 
 
 
 
 
 
 
 
 
 
 
2.2 berechnen  
Stützweite Sparren = 3,21m, h = 1,84m, Grundlänge  = 2,63m  
 
( )2
d d
B,dlw l w h
2 2 2 lg sV+  = + + 
 
( ) 2 2 2 22 kN kN kN kN1,66 0,65 2,63m 0,53 2,63m 0,53 1,84mm m m mB,d2 2 2 2,63m +     = + +V  
 
B,dkN kN kN kN3,04 0,70 0,34 = 4,08m m m mV= + +   3 3
4

Nicht für den Prüfling bestimmt Hessisches Kultusministerium Landesabitur 2022 
Bautechnik Lösungs- und Bewertungshinweise 
Leistungskurs Vorschlag B 
Seite 5 von 10  Aufg. erwartete Leistungen BE 
I II III 
2.3 ermitteln 
1 2 0,24 m 0,34 m
eff, Feld w, Anbau 2 2 2 26,26m 6,55mt tl l= + + = + + =  
1 0,24 m
eff,Krag eff, Feld 2 29,58m- 6,55m 2,91mt
Pfette l l l=− −=−=   
 
darstellen, beschriften, bemaßen 
 
 
darstellen  
beschriften 
bemaßen   
 
 
 
 
 
 
 
 
 
 
 
1 
1 
1  
 
2 
 
 
 
 
 
 
 
 
 
 
 
1 
 
  
 
 
 
 
 
2.4 bestimmen 
 
Auflagerkräfte A V ,d und B V ,d: 
( )
( )2
V,d
2
V,d
V,d9,46m kN6,55m 8,16 30,00kN 9,46mm 2
9,46m kN8,16 30,00kN 9,46mm 2 6,55m
365,126kNm 283,80kNm 648,93kNm
6,55m 6,55m
 99,07 kNB
B
B −  − 
 − 
=
+= =
= 
 
V,d
V,d
V,dkN6,55m 8,16 9,46m 1,82m 30,00kN 2,91mm
kN8,16 9,46m 1,82m +30,00kN 2,91mm
6,55m
140,49kNm +87,30kNm 53,19kNm
6,55m 6,55m
 8,12kNA
A
A −  +
−   
=
−= =
= 3 3  
2.5 analysieren 
Die Lasten eines Kragarms entlasten das Auflager A und verringern das Feldmo-
ment. Durch das geringere Feldmoment wird ein niedrigerer Pfettenquerschnitt 
möglich. Im Extremfall muss das entgegengesetzte Ende des Trägers gegen Ab-
heben gesichert werden.     3
5

Nicht für den Prüfling bestimmt Hessisches Kultusministerium Landesabitur 2022 
Bautechnik Lösungs- und Bewertungshinweise 
Leistungskurs Vorschlag B 
Seite 6 von 10  Aufg. erwartete Leistungen BE 
I II III 
2.6 berechnen  
|maxM d , S t ü t z | =2 2kN 2,91 m8,16 30,00kN 2,91m 121,85kNmm 2 +=     
 
|maxM d , F e l d | =kNm8,12kN
8,168,12kN
4,04kNm2
=   
  4  
2.7 dimensionieren 
 
y erf W , bei GL28h 
2 2d,Stütz 3
kN kN
md,GL28h cm cm121,85kNm 12185kNcm    7084,30cm   1,72 1,72y erfMf W= = = =  
 
3erf. 6 7084,30cm 6erf h = 42,08cm  b 24cmyW = =  
Erforderlicher Querschnitt: 24/44 
                                                                     
 
bewerten 
erf. h=42,08cm > vorh. h 36cm           → Die Konstruktion ist unzulässig.  1 3 
 
 
 
 
2.8 nachweisen 
Auflagerfläche zwischen Sparren und Pfette 
3,0cm sin35 5,23cm,==l  
b = Sparrenbreite=8cm   
, , ,kNSparrenabstand = 4,08 0,58 2,37kN = =V d Sparren V dB B mm 
,
,90, , 28 2 22,37kN 2370 N 2370 N N.     0,5668cm 5,23cm 80mm 52,3mm 4184mm mmV d
c d GL h erf fB
A= = = = = 
,90, , 28 2 2N N. 1,85 0,566mm mmc d GL h vorh f=          → Die Konstruktion ist zulässig 
  3 3 
 Summe 48   9 27 12
6

Nicht für den Prüfling bestimmt Hessisches Kultusministerium Landesabitur 2022 
Bautechnik Lösungs- und Bewertungshinweise 
Leistungskurs Vorschlag B 
Seite 7 von 10  3.1 berechnen 
 
 
 
 
 
 
 
 
 
 
 
 
  
 
 
 
 
 
 
 
 
 
 
 
 
 
 
 
 
 
 
 
 
 
 
 
 
 
2 
 
 
 
 
 
 
 
 
 
 
 
 
 
 
 
 
 
 
 
 
 
 
 
 
 
  
 
 
 
 
 
 
 
 
 
 
 
 
 
 
 
 
 
 
 
 
 
 
 
 
 
1 
 
 
 
 
 
 
 
 
 
 
 
 
 
 
 
 
 
 
 
 
 
 
 
 
 
  
 
 
 
 
 
 
 
 
 
 
 
 
 
 
 
 
 
 
 
 
 
 
 
 
 
 
 
 
 
 
 
 
 
 
 
 
 
 
 
 
 
 
 
 
 
 
 
 
 
 
 
 U-Wert Berechnung und Temperaturverlauf in BauteilenNr.  Schicht
Dicke Wärmeleit- Wärmedurch- Temperatur- Schicht-Dämmung
fähigkeit lasswiderstand unterschied temperaturdi
λi
Ri = d i / λi
ΔTi = R i × q T i = T i-1 - 
ΔTi[m] [W/mK] [m²K/W]
[K] [°C]Bauteildicke d = 
∑ di =0,210[m]Wärmedurchlasswiderstand Bauteil R = 
∑ Ri =4,662[m²K/W]Wärmedurchgangswiderstand Bauteil R T = R si + 
∑ Ri + R se =4,887[m²K/W]Wärmedurchgangskoeffizient Bauteil U = 1 / R T =0,205[W/m²K]Temperaturdifferenz 
ΔT = 
∑ ΔTi = [K]Wärmestrom q = U × 
ΔT = [W/m²]
ϑ
e6
Wärmeübergangswiderstand außen R se
0,1255 4 2 OSB-Platte 3 Dämmung
0,180 0,040 4,500 0,015 0,130 0,115
ϑ
iWärmeübergangswiderstand innen R si
0,1001 Gipsfaserplatte
0,015 0,320 0,047
7

Nicht für den Prüfling bestimmt Hessisches Kultusministerium Landesabitur 2022 
Bautechnik Lösungs- und Bewertungshinweise 
Leistungskurs Vorschlag B 
Seite 8 von 10   
 
 
bestimmen 
2 21 1 2 2
m
1 2
m 2W W0 205 0 50m 0 564 0 08m
m K m K
0 58m
W0 147W mK0 2550 58m m K, , , ,U b U bUb b ,
,
U ,,++= =+
= =  
 
 
 
 
 
 
 
 
 
 
 
 
 
 
 
 
 
 
 
 
 
 
 
 
 
2 
 
 
 
 
 
 
 
 
 
 
 
 
 
 
 
 
 
 
 
 
 
 
 
 
 
  2  
 
 
 
 
 
 
 
 
 
 
 
 
 
 
 
 
 
 
 
 
 
 
 
 
 
1 
 
 
 
 
 
 
 
 
 
 
 
 
 
 
 
 
 
 
 
 
 
 
 
 
 
1  
 
 
 
 
 
 
 
 
 
 
 
 
 
 
 
 
 
 
 
 
 
 
 
 
 
 
 
 
 
 
 
 
 
 
 
 
 
 
 
 
 
 
 
 
 
 
 
 U-Wert Berechnung und Temperaturverlauf in BauteilenNr.  Schicht
Dicke Wärmeleit- Wärmedurch- Temperatur- Schicht-Sparren
fähigkeit lasswiderstand unterschied temperaturdi
λi
Ri = d i / λi
ΔTi = R i × q T i = T i-1 - 
ΔTi[m] [W/mK] [m²K/W]
[K] [°C]Bauteildicke d = 
∑ di =0,210[m]Wärmedurchlasswiderstand Bauteil R = 
∑ Ri =1,547[m²K/W]Wärmedurchgangswiderstand Bauteil R T = R si + 
∑ Ri + R se =1,772[m²K/W]Wärmedurchgangskoeffizient Bauteil U = 1 / R T =0,564[W/m²K]Temperaturdifferenz 
ΔT = 
∑ ΔTi = [K]Wärmestrom q = U × 
ΔT = [W/m²]
ϑ
e6
Wärmeübergangswiderstand außen R se
0,1255 4 2 OSB-Platte 3 Sparren C 24
0,180 0,130 1,385 0,015 0,130 0,115
ϑ
iWärmeübergangswiderstand innen R si
0,1001 Gipsfaserplatte
0,015 0,320 0,047
8

Nicht für den Prüfling bestimmt Hessisches Kultusministerium Landesabitur 2022 
Bautechnik Lösungs- und Bewertungshinweise 
Leistungskurs Vorschlag B 
Seite 9 von 10  Aufg. erwartete Leistungen BE 
I II III 
3.2 nachweisen 
2
T 2
2 2
Zusatz T T
2
2
Zusatz Zusatz
ZusatzW 1 m Kzul 0 20 erf 5 000 20 W m K
m K 1 m Kerf erf vorh 5 00 1 078W W W0 255
m K
m K Werf erf 1 078 0 035 0 038mW mK
bestimmen
gewählt: 4cmi
i i
iU , R ,,
R R R , ,
,
dR d R , , ,
d== =
=−=−=
====
=  
 
 
 
 
 
 
 
 
1  
 
 
 
 
 
  
 
 
 
 
3 
 
 
 
3.3 entwerfen, skizzieren, bemaßen, beschriften 
entwerfen 
skizzieren 
bemaßen 
beschriften 
 
begründen 
Die Anordnung der Wärmedämmung auf der “kalten Seite”, verhindert ein Aus-
kühlen der Konstruktion und eine mögliche Tauwasserbildung. Die Sparren sind 
im Jahresverlauf geringeren Temperaturschwankungen ausgesetzt.   
 
 
 
 
 
 
1 
2 
1 
 
 
 
 
  
 
 
 
 
 
2 
1 
 
 
 
 
 
 
  
 
 
 
 
 
 
 
 
 
 
 
 
 
 
 
 
 
2 
 Summe 22 11 6  5
9

Nicht für den Prüfling bestimmt Hessisches Kultusministerium Landesabitur 2022 
Bautechnik Lösungs- und Bewertungshinweise 
Leistungskurs Vorschlag B 
Seite 10 von 10  III Bewertung und Beurteilung 
Die Bewertung und Beurteilung erfolgt unter Beachtung der nachfolgenden Vorgaben nach § 33 der 
Oberstufen- und Abiturverordnung (OAVO) in der jeweils geltenden Fassung. Bei der Bewertung und 
Beurteilung der sprachlichen Richtigkeit in der deutschen Sprache sind die Bestimmungen des 
§ 9 Abs. 12 Satz 3 OAVO in Verbindung mit Anlage 9b anzuwenden. 
Bei der Bewertung und Beurteilung der Übersetzungsleistung in den Fächern Latein und Altgriechisch 
sind die Bestimmungen des § 9 Abs. 14 OAVO in Verbindung mit Anlage 9c anzuwenden. 
Der Fehlerindex ist nach Anlage 9b zu § 9 Abs. 12 OAVO zu berechnen. Für die Ermittlung der 
Punkte nach Anlage 9a zu § 9 Abs. 12 OAVO sowie Anlage 9c zu § 9 Abs. 14 OAVO wird jeweils 
der ganzzahlige nicht gerundete Prozentsatz bzw. Fehlerindex zugrunde gelegt. 
Für die Bewertung in den modernen Fremdsprachen ist der „Erlass zur Bewertung und Beurteilung 
von schriftlichen Arbeiten in allen Grund- und Leistungskursen der neu beginnenden und fortgeführ-
ten modernen Fremdsprachen in der gymnasialen Oberstufe, dem beruflichen Gymnasium, dem 
Abendgymnasium und dem Hessenkolleg“ vom 7. August 2020 (ABl. S. 519) zugrunde zu legen. 
Demnach erfolgt die Bewertung und Beurteilung mit der Maßgabe, dass lediglich bei der Ermittlung 
des Prüfungsergebnisses (Note) aus Prüfungsteil 1 und 2 gerundet wird.  
Darüber hinaus sind die Vorgaben der Erlasse „Hinweise zur Vorbereitung auf die schriftlichen Abi-
turprüfungen (Abiturerlass)“ und „Durchführungsbestimmungen zum Landesabitur“ in der für den 
Abiturjahrgang geltenden Fassung zu beachten. 
Als Kriterien für die Bewertung und Beurteilung dienen unter Beachtung der Zielsetzung der gymnasi-
alen Oberstufe nach § 1 Abs. 2 OAVO neben dem Inhaltlichen auch die in den Kerncurricula genann-
ten überfachlichen Kompetenzen, insbesondere die Sprachkompetenz und Wissenschaftspropädeutik; 
dies zeigt sich u.a. in qualitativen Merkmalen wie Strukturierung, Differenziertheit, (fach-)sprachli-
cher Gestaltung und Schlüssigkeit der Argumentation. 
Im Fach Bautechnik besteht die Prüfungsleistung aus der Bearbeitung eines Vorschlags, wofür insge-
samt maximal 100 BE vergeben werden können. Ein Prüfungsergebnis von 5 Punkten (ausreichend) 
setzt voraus, dass mindestens 45% der zu vergebenden BE erreicht werden. Ein Prüfungsergebnis von 
11 Punkten (gut) setzt voraus, dass mindestens 75% der zu vergebenden BE erreicht werden. 
 
 
 
Gewichtung der Aufgaben und Zuordnung der Bewertungseinheiten zu den Anforderungsbereichen  
 
Aufgabe Bewertungseinheiten in den Anforderungsbereichen Summe AFB I AFB II AFB III 
1 10 8 12 30 
2 9 27 12 48 
3 11 6 5 22 
Summe 30 41 29 100 
 
 
Die auf die Anforderungsbereiche verteilten Bewertungseinheiten innerhalb der Aufgaben sind als 
Richtwerte zu verstehen.
10